植田実のエッセイ
尾形邸「タイルの家」を訪ねて2 植田実
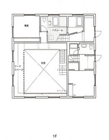
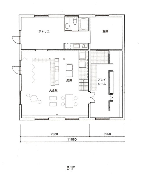
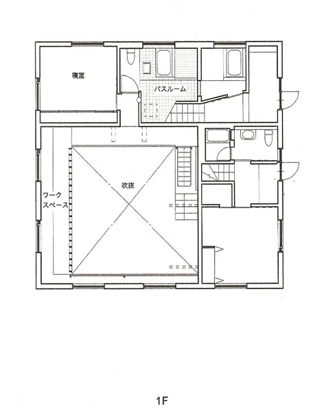
正方形平面は、基本的には各階とも九つに等分割されている。すなわち4x4メートル(高さは3メートル)の単位がベースになる。それをさらに二分して水まわりと階段に分けたり、あるいは2単位、3単位をひとつの部屋に拡げたりしている。そのなかでもっとも大きな部屋は4単位・2層分の吹き抜け空間で、ここが尾形さんたちの厨房・食堂・ロフト風のワークスペースになっている。


タイルの家 平面図 S:1/150
割り切ったプランニングである。だからといってそれぞれの部屋の体験的シークエンスは単調にならない。どころか、その徹底ぶりによってまったく違う表れになっている。平面図と実際に出来上がった空間との意表をつくおもしろい関係が堪能できる。たとえば、前に触れたように外壁四面はすべて等間隔に同じ開口部があるが、それは玄関においても変わらないから、外からガラスのドアを開けた途端にそのまま大きな室内に入っている。内外の境界を意識させるしつらえが、ドアはもちろん床にも、その周辺にも(例えば靴の収納らしいものとか)ほとんどないのだ。
これは上下足を区別しない結果ではあるが、それ以上に、厨房・食堂と図面にとりあえず書かれているこの空間には、それらしい場所がまるで感じられないことに気がつく。流しやレンジはある。食卓らしいテーブルもある。それでも厨房や食堂とは思えない。なぜならば、厨房関係の機器(業務用をそのまま置いてある)や家具などの素材がそれぞれ構成要素としては立派すぎるというか強く自立しているために、住まいの日常という表層を形づくらないからだ。さらに決定的なのはこの空間に運び込まれ、あちらこちらにどっかと腰を据えている特異な大きさや肌合いや色彩や図像である。


厨房・食堂
「生命の樹」と呼ばれる巨大な陶壁画、低く分厚い仕切り壁(台といったほうがいい)を覆い尽す絵タイル、漆細工の重々しい屏風、動物みたいな四つ足の収納箱、そのほか挙げていけばきりがないが、どれもメキシコの伝統工芸の第一人者たちが尾形さんの注文を受け長い歳月をかけてつくった美術品である。さらにはある邸宅の高い屋根部を飾っていた球と円筒を重ねつらねたような陶製の小塔が6基も、この部屋のなかに聳えている。
住まいとしては非日常なものの気配が生活のなかに立ち籠めている。それはメキシコ・スタイルのインテリアショールームのようにも見えるかもしれないが、だから逆に、根強い日々の生活が森を切り拓くかのように現れてくるのをひしひしと感じるのだ。
1998年に着工、坪40万円が目標だったという。ローコストだが「建築は雑貨の延長ではない」と尾形さんは言っている。設備の寿命とコンクリート構造体の寿命は違うし、美術品の寿命はさらに長くて当然だから、そこをわきまえて構造とインテリアを完全に分離するのが設計上の大前提だったという。厳しい経済性と合理性の追求のなかで、メキシコ現地に入りこみ、人間国宝級のアーティストたちにこれだけのものを特注した尾形さんの度胸と余裕には驚くばかりだ。重くかさばる品々を日本にまで運ぶことを考えただけでも普通は尻込みするにちがいない。この家の尋常ならざる気配はこうした日本とメキシコの交叉、さらには定住の場所と旅の場所の交叉から発生している。住まいとしてのまとまりを嫌うかのように、すべてが断片的であると同時に、断片のひとつひとつが全体として迫ってくる。

厨房のコーナー
現代の日本の住宅のほとんどは、ある「住まいらしい」傾斜面のなかにある。たとえばそれは「くつろげる」居場所である。居間やそこに置かれたソファはもとより、キッチンにも食堂にも浴室にも個室にも「くつろぎ」が用意され、美術品からカーテンから小さな装飾までもがそれを補う。定住への夢と消費が果てしなく連鎖している。楽しげな表情に満ちた尾形さんの家は、こうした傾斜への、じつは痛烈な批評となっている。多角的な交叉と分断の只中から、生をくぐり抜けていく死―すなわち永遠が垣間見えてくる。(うえだまこと)
◆ときの忘れものは、2010年6月1日[火]―6月12日[土]まで「ウルトラバロック 尾形一郎 尾形優 写真展」を開催しています。※会期中無休

キリスト教とメキシコの土着の文化が混じりあって生まれた「ウルトラバロック」、その小宇宙を捉えた写真作品をご紹介します。
尾形邸「タイルの家」を訪ねて2 植田実
正方形平面は、基本的には各階とも九つに等分割されている。すなわち4x4メートル(高さは3メートル)の単位がベースになる。それをさらに二分して水まわりと階段に分けたり、あるいは2単位、3単位をひとつの部屋に拡げたりしている。そのなかでもっとも大きな部屋は4単位・2層分の吹き抜け空間で、ここが尾形さんたちの厨房・食堂・ロフト風のワークスペースになっている。


タイルの家 平面図 S:1/150
割り切ったプランニングである。だからといってそれぞれの部屋の体験的シークエンスは単調にならない。どころか、その徹底ぶりによってまったく違う表れになっている。平面図と実際に出来上がった空間との意表をつくおもしろい関係が堪能できる。たとえば、前に触れたように外壁四面はすべて等間隔に同じ開口部があるが、それは玄関においても変わらないから、外からガラスのドアを開けた途端にそのまま大きな室内に入っている。内外の境界を意識させるしつらえが、ドアはもちろん床にも、その周辺にも(例えば靴の収納らしいものとか)ほとんどないのだ。
これは上下足を区別しない結果ではあるが、それ以上に、厨房・食堂と図面にとりあえず書かれているこの空間には、それらしい場所がまるで感じられないことに気がつく。流しやレンジはある。食卓らしいテーブルもある。それでも厨房や食堂とは思えない。なぜならば、厨房関係の機器(業務用をそのまま置いてある)や家具などの素材がそれぞれ構成要素としては立派すぎるというか強く自立しているために、住まいの日常という表層を形づくらないからだ。さらに決定的なのはこの空間に運び込まれ、あちらこちらにどっかと腰を据えている特異な大きさや肌合いや色彩や図像である。


厨房・食堂
「生命の樹」と呼ばれる巨大な陶壁画、低く分厚い仕切り壁(台といったほうがいい)を覆い尽す絵タイル、漆細工の重々しい屏風、動物みたいな四つ足の収納箱、そのほか挙げていけばきりがないが、どれもメキシコの伝統工芸の第一人者たちが尾形さんの注文を受け長い歳月をかけてつくった美術品である。さらにはある邸宅の高い屋根部を飾っていた球と円筒を重ねつらねたような陶製の小塔が6基も、この部屋のなかに聳えている。
住まいとしては非日常なものの気配が生活のなかに立ち籠めている。それはメキシコ・スタイルのインテリアショールームのようにも見えるかもしれないが、だから逆に、根強い日々の生活が森を切り拓くかのように現れてくるのをひしひしと感じるのだ。
1998年に着工、坪40万円が目標だったという。ローコストだが「建築は雑貨の延長ではない」と尾形さんは言っている。設備の寿命とコンクリート構造体の寿命は違うし、美術品の寿命はさらに長くて当然だから、そこをわきまえて構造とインテリアを完全に分離するのが設計上の大前提だったという。厳しい経済性と合理性の追求のなかで、メキシコ現地に入りこみ、人間国宝級のアーティストたちにこれだけのものを特注した尾形さんの度胸と余裕には驚くばかりだ。重くかさばる品々を日本にまで運ぶことを考えただけでも普通は尻込みするにちがいない。この家の尋常ならざる気配はこうした日本とメキシコの交叉、さらには定住の場所と旅の場所の交叉から発生している。住まいとしてのまとまりを嫌うかのように、すべてが断片的であると同時に、断片のひとつひとつが全体として迫ってくる。

厨房のコーナー
現代の日本の住宅のほとんどは、ある「住まいらしい」傾斜面のなかにある。たとえばそれは「くつろげる」居場所である。居間やそこに置かれたソファはもとより、キッチンにも食堂にも浴室にも個室にも「くつろぎ」が用意され、美術品からカーテンから小さな装飾までもがそれを補う。定住への夢と消費が果てしなく連鎖している。楽しげな表情に満ちた尾形さんの家は、こうした傾斜への、じつは痛烈な批評となっている。多角的な交叉と分断の只中から、生をくぐり抜けていく死―すなわち永遠が垣間見えてくる。(うえだまこと)
◆ときの忘れものは、2010年6月1日[火]―6月12日[土]まで「ウルトラバロック 尾形一郎 尾形優 写真展」を開催しています。※会期中無休

キリスト教とメキシコの土着の文化が混じりあって生まれた「ウルトラバロック」、その小宇宙を捉えた写真作品をご紹介します。
コメント一覧