花田佳明「子どものための建築と空間展」1月12日(土)~3月24日(日)について
花田佳明(神戸芸術工科大学教授)
現在、東京のパナソニック汐留ミュージアムにおいて、「子どものための建築と空間展」が開催されている(2019年1月12日(土)~3月24日(日))。明治時代から現代までの幼稚園、小中学校、公園など、子どもたちのための学びと遊びの場について考えようという企画である。小さな子どもたちが登場する写真や図面や模型などがたくさん並び、楽しくしかも見ごたえのある展覧会だ。そこに、八幡浜市立日土(ひづち)小学校という学校の白い模型が展示されている。
「子どものための建築と空間展」に展示された日土小学校の模型(写真:パナソニック汐留ミュージアム提供)
この学校をご存知の方は、本ブログの読者の中におられるだろうか。八幡浜市は愛媛県にある地方都市で、四国から九州に向かって突き出た細長い佐田岬半島の根元に位置している。漁業、水産加工業、そして、「耕して天にいたる」と言われるほどに山を覆う段々畑での蜜柑栽培が有名な町だ。その中心部から北へ数キロ、山間部の谷筋を流れる喜木川という川に沿って日土小学校は建っている。
1958年に完成した2階建ての木造校舎である。そう聞くと多くの方は、下見板貼りの外壁で瓦葺きの切妻屋根、長くまっすぐな廊下に沿って薄暗い教室が並ぶ、いわゆる「懐かしの木造校舎」を連想するだろう。しかし、日土小学校はそういったイメージとは全く違う。淡いパステルカラーの外壁に水平連続窓が走る軽快な立面で、スレート瓦の切妻屋根も鶯色に塗られている。内部の壁や柱にも明るい彩色が施され、あちこちの窓から光が降り注ぐ。校舎から喜木川へ迫り出したテラスや外部階段に立てば、身も心も風景の中に溶けてしまいそうだ。
日土小学校全景(改修後。撮影:北村徹)
日土小学校川側全景(改修後。撮影:北村徹)
後に詳しく述べるが、この学校は、2000年頃から始まった保存再生活動に支えられ、2009年に改修工事を終えて最新の小学校として甦った。展示されている模型は、その活動の出発点ともいえる「文化遺産としてのモダニズム建築展 ドコモモ20選」(神奈川県立近代美術館、2000年)のために、神戸芸術工科大学の学生と私で制作したものである。
私は、松村正恒が設計した日土小学校を含むいくつかの建物を1994年に見て感激して以来、松村について研究し、日土小学校の保存再生活動にも関わってきた。このたび「子どものための建築と空間展」で同校が紹介されたこともあり、以下、日土小学校、松村正恒、そして日土小学校の保存再生の概要を紹介したい。
日土小学校の模型(撮影:花田佳明)
日土小学校の模型(撮影:花田佳明)
はじめに
日土小学校の校舎は、八幡浜市役所の職員であった建築家・松村正恒(1913-93年)の設計によって1958年に完成した。松村は1947年に同市に奉職したあと、1960 年に退職するまでの13年間に、多くの秀れた学校建築や病院関連施設などを設計した人物である。
日土小学校はその中でも代表作といえる建物で、竣工直後から卓越した建築計画と詩情溢れるたたずまいが注目され、建築の研究者とジャーナリズム双方から高く評価された。また松村自身も、1960年5月号の『文藝春秋』の「建築家ベストテン-日本の10人」という特集記事で、村野藤吾、前川國男、丹下健三らとともに日本を代表する10人の建築家のひとりに選ばれ、その名は広く知られるところとなった。
しかし時間の経過とともに学校建築の潮流も変化し、日土小学校について語られる機会は減っていく。また松村も、1960年に市役所を辞めて松山市に設計事務所を開設したが、建築ジャーナリズムの関心を引くような作品は少なく、次第に建築界の最前線から消えていった。
ところが1990年代にはいり、近代建築を再評価する動きが高まる中で松村に関する研究も始まり(1)、日土小学校は、1999年、DOCOMOMO Japanによって日本を代表する20のモダニズム建築のひとつに選ばれた。この20の建物を紹介した展覧会が、冒頭で述べた「文化遺産としてのモダニズム建築展 ドコモモ20選」展である。
そして、この頃から同校の保存活動が展開され、2009年に保存再生工事が完了し、今も現役の小学校として使い続けられている。
その後2012年には、保存活動の関係者に対して日本建築学会賞(業績)と、さらにニューヨークに拠点を置くワールド・モニュメント財団から、ワールド・モニュメント/ノール モダニズム賞が与えられ、日土小学校と松村正恒の名は国内外で広く知られるようになった。さらに同年、日土小学校は、戦後建築として4番目となる国の重要文化財に指定された。
日土小学校の特徴
日土小学校は長い歴史をもつ学校である。そもそもは、1875年、日土地区に開設された啓蒙学校を起源としている。その後、近隣の学校との合併や改称などをくり返し、1909年に日土尋常小学校となり、1910年4月、現在の地に校舎が建設された。これも喜木川に沿った2階建ての立派な木造校舎で、「33間の校舎」と呼ばれたと記録されている(2)。その後、1937年に講堂が敷地西側に、1949年に日土中学校が敷地東側にそれぞれ建設され、運動場をコの字型に建物が囲んだ。
そして戦後になり、1955年に西校舎が講堂の東隣りに建てられた後、中央の旧校舎を半分ずつ解体し、まずは1956年に運動場から見て右側の中(なか)校舎が、次いで1958年に左側の東校舎が、いずれも松村正恒の設計によって建設された。中校舎には、職員室、工作室、音楽室、2つの普通教室、東校舎には6つの普通教室や便所があった。
竣工直後の全景(日本建築学会蔵、松村家旧蔵)
日土小学校には、いくつもの建築的な特徴がある。まずは東校舎において、教室と廊下を分離したクラスター型の教室配置を採用しているということだ。旧来の学校では、まっすぐな廊下に沿って教室が並び、当然のことながら両者は直接接している。しかし日土小学校では、それらの間に外部空間としての中庭がはさまれ、2教室がひと組になり枝状の前室を介してぶどうの房(=クラスター)のように廊下とつながっているのである。
この配置計画によって、廊下の喧騒から切り離され落ち着いた学習環境が実現するとともに、廊下と運動場双方から教室に光と風を取り入れる両面採光が実現した。教室に十分な照明設備がなかった戦後間もなくの時期において、それはきわめて切実な建築的解答だった。
クラスター型の教室配置については、当時、東京大学建築学科の吉武泰水研究室を中心に研究や実作が行われていたが、空間の完成度という点では日土小学校の方が高いと言わざるを得ない。松村は学生時代から海外の医療・福祉・教育関係の建築の最新情報をよく調べており、クラスター型教室配置という考え方も戦前から知っていたと思われる。
東校舎1階・旧昇降口まわり(改修後)。左から、昇降口、通路、中庭、教室(撮影:花田佳明)
東校舎2階・廊下まわり(改修後)。中央の窓の向こうが中庭。廊下から少し上がり右手の教室にはいる(撮影:花田佳明)
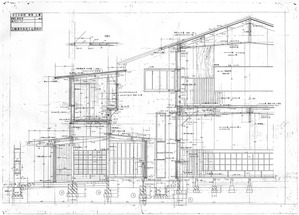
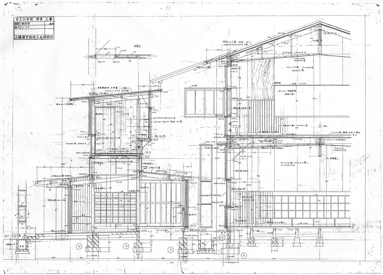
日土小学校東校舎矩計図。左から、昇降口や廊下と教室との間に中庭があることがよくわかる(八幡浜市役所蔵)
構造形式にも工夫がある。日土小学校は基本的には木造だが、実際にはスチールも適宜組み合わせたハイブリッドな構造になっている。大きな空間がほしい教室ではスチールのアングル材を組み合わせたトラス梁によってスパンを飛ばし、水平剛性を確保するためには屋根面等に鉄筋の筋交いを入れるなど、工学的工夫が各所にある。
最も印象的なのは、東校舎の川に面した教室の外壁である。そこには垂れ壁も袖壁もなく、腰壁もごくわずかだ。つまり、教室のひとつの壁面がほぼ完全にガラス面となっている。しかも、外壁が柱の列から数十センチ離してあり、外壁には柱幅分の障害物すらない。しがって、オフィスビルなどで使われるカーテンウォール形式と同様に、ガラスの入った建具だけで構成された外壁となり、川側の自然と視覚的に一体となった教室が生まれている。
しかし壁がないので横方向の力には弱いため、柱の列の位置に鉄筋の筋交いを入れることで水平力に抗している。意匠的にも、木質の空間の中に交差した細い鉄筋が加わることで、緊張感ある近代的な印象の空間になったといえる。
東校舎川側の外壁(改修前)。外壁が柱から切り離されていることと鉄筋の筋交いがよくわかる(撮影:花田佳明)
東校舎1階理科室(旧普通教室。改修後)。鉄筋の筋交いは2連の新しいものに取り替えられた(撮影:北村徹)
さらに、廊下、階段、図書室、川側のテラスや外部階段などのデザインは細部まで考え抜かれており、現代の建築にも類を見ない豊かさをもっている。学校内のすべての空間が、子どもたちと先生のための心地よい居場所なのだ。
東校舎階段(改修後)。ゆるやかな勾配でいつの間にか2階に着く(撮影:北村徹)
東校舎2階図書室(改修後)。様々な意匠が混在する。左の壁には輪切りにした竹で星座が描かれている(撮影:花田佳明)
東校舎2階図書室奥のベランダ(改修後)。川と山と建物が一体となる(撮影:花田佳明)
松村正恒という建築家
日土小学校を設計した松村正恒は、地元愛媛県の出身である。1913年1月12日、現在の大洲市新谷町に生まれた。八幡浜市の隣町だ。実家は大洲藩に仕えた武家という立派な家だが、2歳で父親と死別し母親とも別れて暮らすなど、やや寂しい幼年時代を送っている。
1930年に地元の大洲中学校を卒業した後、2年の浪人期間を経て、1932年に武蔵高等工科学校(現・東京都市大学)建築工学科に入学した。浪人経験の挫折感を引きずり、建築を選んだ積極的理由もなく、また新設の武蔵高等工科学校への期待感も薄く、入学当初はあまり褒められた学生ではなかったようだ。しかしその後、バウハウスから帰ったばかりで同校の教員となっていた蔵田周忠の薫陶を受け、松村は建築に目覚めていく。また、川喜田煉七郎の新建築工芸学院に通って最新のデザインを学び、児童問題については独学し、さらに今和次郎の民家研究会に参加するなど、学外での活動も積極的に行った。
1935年に卒業し、松村は蔵田の勧めに従い土浦亀城建築設計事務所に就職した。そこでは、もっぱら資産家のためのいわゆる「白い家」としての近代建築の設計に携わり、1939年からは満州の新京に移転した土浦事務所に勤務して植民地生活も経験した。
一方、建築雑誌『国際建築』編集長・小山正和の知遇を得て海外文献の翻訳に携わり、国内外の最新の建築計画学的知識を独学し、さらに弱者救済の社会活動に参加するなど、自分の道を探る努力も重ねている。
そして、スタイリッシュな設計に終始する土浦の姿勢に飽き足らなくなったのか、1941年には土浦事務所を辞して農地開発営団へ移り、竹内芳太郎らの指導のもとで貧しい日本海側にある農村の住宅調査に従事した。
つまり松村は、大正デモクラシー末期の故郷を出たあと、都市化の始まった東京、戦時下の植民地、そして内地の貧しい農村を見たのである。まさに、日本の近代化の側面をひととおり経験したといえるだろう。
そして松村は、終戦とともに故郷の大洲市へ戻り、1947年に八幡浜市役所の職員となって土木課建築係に勤務した。戦前の一連の学習が、戦後における八幡浜市役所での活動の糧となったことは間違いない。
市役所での活躍はめざましく、彼が設計した建物は建築雑誌や『建築学大系』などの書物に紹介され、1960年には、すでに述べたように、『文藝春秋』によって日本を代表する10人の建築家のひとりに選ばれた。
松村は、社会正義と反骨精神に満ちた人物であり、旧態依然とした教育委員会や市議会などと闘ったエピソードが残っている。また彼は、教育や福祉の充実をめざした名市長・菊池清治に支えられた。民主化された戦後社会のあるべき姿を共有した首長と建築家の幸福な出会いがあったのだ。
八幡浜市役所時代の松村正恒。後ろは彼が設計した市立八幡浜総合病院東病棟(日本建築学会蔵、松村家旧蔵)
その後松村は、1960年に八幡浜市役所を辞して松山市に設計事務所を開設した。そして、1993年に亡くなる直前まで現役を貫き、大小合わせて約400もの建物を設計した。書や狂言を愛し、近代建築の保存運動にも尽力した。機会あるごとに発せられた自在な言葉や文章は、建築あるいは建築家のあるべき姿についての儒教的ともいえる厳しい批評でもあった。
晩年の松村正恒。右は保存活動に力を注いだ日本銀行松山支店の写真(日本建築学会蔵、松村家旧蔵)
しかし、この間に彼が設計した建物には日土小学校のような先鋭性はなく、市中のアノニマスなデザインと思えるものが多く、評価に迷う。独立後はコンクリート造の仕事が多くなったが、作家性の強い建築や建築家に対する批判的な思いが強い松村には、誰かの影響を受けたと思われるようなデザインができなかった上に、木造中心の市役所時代にはコンクリートによる独自のヴォキャブラリーを確立できていなかったことなどの問題があったのではないだろうか。
建築ジャーナリストで評論家の宮内嘉久によるインタビューに対し、松村は、税金でつくる公共建築では可能な限りの実験をしたが、独立後の民間の仕事では冒険はしにくいという主旨のことを答えているが(3)、胸中複雑なものがあったのではないかと私は想像している。
しかし逆に言えば、松村は他者のアイディアに頼ることなく、自らの思考の内部でデザインを行おうとした建築家とも考えられる。とくに八幡浜市役所時代の作品を丹念に分析すれば、建築計画・意匠・構造・環境工学といったさまざまな領域の知識や技術を使いこなし、一作ごとにデザインを進化させながら、自らが考えた設計手法の内部で自己参照的に、自らの学校観や建築観をひたすら空間化した結果であることがよくわかる(4)。
また、「外部」に頼らないということを象徴的に示すエピソードとして、建築評論家の神代雄一郎との対談での発言があげられる。1978年に行われ、「風土と建築」というタイトルでまとめられた対談(『ina REPORT』1978年6月号)(5)で、神代から「僕らも今回は地域にしっかり根をおろして、いい仕事をしておられる方をおたずねしているのですが、風土については、どうお考えですか」と問われたとき、松村は以下のように答えている。
私は正直いって地方とか地域とか風土とかいうことを余り意識せんのですわ。というのは、最初いうたように、それが自然の体から結果として生れればいいことでしてね。人間でも作品でも、いや味のあるのは大嫌いなんでね、自然にずっとにじみ出るのじゃないといけない。だから余りそういうことを意識せずに、どこまでも真実を追い求めんといかん。特に地方ではどうこういわんでも真実を求めたら、そこに住んでいて、その土地人の気持ち、だから作品をつくるというんじゃないしに、それを使う人の気持になればいいんでしてね。私も1つの使用者になればいいんでして、ながめるためのものではない。ただ、私がつくったものを満足して喜んで、そこからそれを土台にして人間が少しでもよくなってくれればいいという気持で、終始一貫しているんです。
また、「伝統論私見」(『国際建築』1965年1月号)という文章(6)では、おそらく川添登や丹下健三による「伝統論争」を念頭におきながら、以下のように書いている。
伝統とは、形式の問題ではない。心構えの問題だ。初めに形があるのではなく、形は結果である。伝統を越えたとか、越えぬとか、棒高跳びとは、ワケが違う。歴史の価値を学びとるには、その根にひそむものを、洞察する以外にない。そこまでの面倒を怠って、ただ、形式だけ拝借して、伝統をうけついだなどとは恐れいる。
伝統的な形を現代的に翻案し、自分の設計の中に安易に取り入れることを戒めているといってよいだろう。
いずれにしても松村は、地方、地域、風土、伝統といった建築の「外の」言葉によって自分の建築の意味が固定化、あるいは曖昧化されることを拒否し、社会や人々に奉仕する本質的デザインの必要性を主張した。日土小学校は、まさにそのような考え方の結晶であるし、さらには、近代建築の本来的な姿であるといえるだろう。
保存再生活動とその後
1990年代には、松村正恒が市役所時代に設計した木造建築の多くは解体の危機に瀕していた。八幡浜市立の病院関連施設は伝染病棟を除き既に解体されており、学校関係でも、日土小学校より規模の大きな木造建築であった江戸岡小学校の解体も迫っていた。そのような状況の中、松村を知る関係者の間には、日土小学校だけはなんとか保存したいという思いが募っていた。
そこで、1999年に日本建築学会四国支部50周年記念事業として、松村の設計した八幡浜市立江戸岡小学校で松村に関するシンポジウムが開催された。これを機に、私を含むその後の保存活動を担うメンバーのネットワークが生まれ、日土小学校の保存活動が本格化した。そして、「夏の建築学校」と名づけられた勉強会や各種シンポジウムを八幡浜で行うなど、日土小学校の価値を訴える活動が始まった。
その後、紆余曲折はあったが、八幡浜市が同校の保存再生を決断し、2006年に日本建築学会に現状調査と改修計画案の策定が委託され、そこでまとめられた内容に基づいた保存再生工事によって、2009年、日土小学校は歴史的価値と現代的な機能を両立させた小学校として甦ったのである。
具体的な改修計画に策定にあたっては、日本建築学会の中に、故・鈴木博之先生を委員長とする委員会を作り(7)、以下のようなテーマに基づきまとめていった。
[1]文化財としての価値を尊重し、基本的に当初の状態に戻す。
[2]構造補強をおこない、現行の建築基準法以上の耐震性能を確保する。
[3]東校舎の6つの普通教室の意匠は当初の状態に戻すが、実験台や調理台などを設置して特別教室に変える。
[4]中校舎の職員室まわりは改修し、運動場への見通しを確保する。
[5]中校舎の特別教室を改修して2つの普通教室とする。
[6]床の遮音性の向上、建具の改良、便所の更新など、各所の機能性を高める。
[7]4つの普通教室を確保するために新西校舎を建設する。
工事中には色々な発見があった。たとえば色彩計画については、竣工後に何回か塗られていたペンキの最下層を探索し、当初の色を確定する作業を行なった。その成果が、淡いパステルカラーで複雑に塗り分けられた現在の姿である。サッシュと外壁の色を、2期に工事が分かれた中校舎と東校舎の運動場側と川側で入れ替えるなど、建築的な操作が行われていることも確認できた。
改修工事中の様子(撮影:花田佳明)
その後に生まれた評価は最初に書いたとおりである。連戦連敗が続く近代建築の保存活動における数少ない成功事例として、各方面から評価された。また地元においても、保存再生活動途中にはさまざまな意見があったが、甦った校舎は暖かく迎え入れられ、国の重要文化財となった建物を、子どもたちも先生も地域の人たちも使いこなしている。
甦った日土小学校全景。右奥に増築した新西校舎が見える(撮影:北村徹)
甦った日土小学校の川側全景。左端は増築された新西校舎(撮影:北村徹)
甦った日土小学校を中心にして、さまざまな出来事が生まれ続けている。
松村が八幡浜市役所時代に設計した建物のうち、まだ残っている旧・川之内小学校 (1950年)、旧・長谷小学校 (1953年)、 旧・八幡浜市立図書館 (1954年)、中津川公民館 (1956年)の価値を八幡浜市役所も認識し、専門家に委託して現況調査を行い報告書がまとめられた。
松村と日土小学校についての三冊の本も出た。刊行順に紹介すると、まずは私事で恐縮だが、松村正恒に関する私の博士論文を書籍化した『建築家・松村正恒ともうひとつのモダニズム』(鹿島出版会、2011年)である。松村の生い立ちから八幡浜市役所での設計活動を中心に記述・分析したもので、松村のことに関心を持たれたらまず手にしていただきたい。
次が、日土小学校の保存再生の工事報告書を書籍化した『日土小学校の保存と再生』(八幡浜市教育委員会監修/「日土小学校の保存と再生」編纂委員会編集、鹿島出版会、2016年)である。研究機関等に埋もれがちな工事報告書を、なんとか多くの方の元に届けたいという思いから、全面的に再編集し、写真家・山岸剛さんによる撮り下ろし写真も加え、保存再生の経緯や考え方から技術的なことまでの全てを記録した。写真と図面が満載なので、建築の専門の方でなくても楽しんでいただけるだろう。
3冊目は、『老建築稼の歩んだ道 松村正恒著作集』(花田佳明編、鹿島出版会、2018年)である。本稿でも少し引用した松村の言葉からおわかりかもしれないが、彼の文章や語りは独特の文体と批評性をもっていて面白い。しかし、それを読むことが難しくなっていたため、既刊の書籍、雑誌原稿、未刊原稿などから文章を選び1冊にまとめた。本書を読むと、彼と対話をした気分になるに違いない。

左から『建築家・松村正恒ともうひとつのモダニズム』、『日土小学校の保存と再生』、『老建築稼の歩んだ道 松村正恒著作集』
装丁は、『建築家・松村正恒ともうひとつのモダニズム』は間村俊一さん、『日土小学校の保存と再生』と『老建築稼の歩んだ道 松村正恒著作集』は白井敬尚さんにお願いした。いずれのブックデザインにも様々な工夫があり、解読の楽しみがある。
松村と日土小学校に関する展覧会も各地で開かれた。主なものは、東京(GALLERY A4(ギャラリー エー クワッド)、2011年)、大阪(大阪市立住まいのミュージアム 大阪くらしの今昔館、2011年)、松山(愛媛大学ミュージアム、2012年)、八幡浜(八幡浜市民ギャラリー、2013年)で、いずれにも多くの来訪者があった。
改修工事が終わった年から、春、夏、冬の長期の休みには必ず見学会が開かれている。訪問者の数は減ることなく、建築関係者から一般の方まで多くの人々が訪れている。今年度最後の見学会は3月31日(日)である。ぜひ春の四国路を訪れていただきたい。
春の日土小学校(2015年3月。撮影:花田佳明)
おわりに
松村正恒についての研究と日土小学校の保存再生に長く携わって来て改めて気づくのは、彼の建築が作家性の強い個人的なデザインではないにもかかわらず、きわめて美しくしかも機能的であり、彼の言葉がいささかアクの強い独特のものであるにもかかわらず、きわめて一般性をもちしかも批評的であるというアンビバレントな事実である。多くの建築家においては、設計された建築と発せられた言葉のイメージは似ていることが多い。しかし松村の場合は両者のギャップが甚だしい。唐突な結論と思われるかもしれないが、私は彼が残したこのような建築と言葉の関係に大変興味をもっている。
最後に、本稿はネット上に掲載されるというメリットを生かし、参考になるサイトにリンクしておくのでご覧いただきたい。
●改修後の日土小学校の動画。GALLERY A4(ギャラリー エー クワッド)での展覧会時に同館が撮った動画に、ワールド・モニュメント財団が英語字幕をつけて再編集したもの。
同財団のサイト内
https://www.wmf.org/content/hizuchi-elementary-school
YouTube
●ワールド・モニュメント財団がワールド・モニュメント/ノール モダニズム賞を出したときに作成した冊子。
https://www.wmf.org/sites/default/files/article/pdfs/Modernism-Hizuchi.pdf
●八幡浜市が制作した『木造校舎、木造の公共建物の残るまち 八幡浜』という冊子のPDF
http://www.city.yawatahama.ehime.jp/docs/2016033100011/files/160331b.pdf
●八幡浜市役所のサイト内の日土小学校の見学会のお知らせページ
http://www.city.yawatahama.ehime.jp/docs/2014071000034/
●拙著『建築家・松村正恒ともうひとつのモダニズム』が日本建築学会著作賞を受賞した際に作られた業績紹介ページ。松村の八幡浜市役所時代に設計した建物の写真なども掲載。
https://www.aij.or.jp/jpn/design/2016/data/4_award_06_hanada.pdf
註(1)花田佳明「松村正恒の残したもの」『再読/日本のモダンアーキテクチャー』(彰国社、1997年)、『SD』2000年9月号(特集・木造モダニズム1930s-1950s)等。
註(2)『開校百周年記念誌 ひづち』(日土小学校開校百周年記念事業委員会、1976年)
註(3)『素描・松村正恒』(宮内嘉久編集事務所編、建築家会館、1992年)。『老建築稼の歩んだ道 松村正恒著作集』(花田佳明編、鹿島出版会、2018年)に再録。
註(4)詳しくは、拙著『建築家・松村正恒ともうひとつのモダニズム』(鹿島出版会、2011年)参照。
註(5)『老建築稼の歩んだ道 松村正恒著作集』(花田佳明編、鹿島出版会、2018年)に再録。
註(6)同上。
註(7)日本建築学会四国支部日土小学校保存再生特別委員会(所属は当時)
委員長:鈴木博之(東京大学名誉教授、青山学院大学教授)、委員:曲田清維(愛媛大学教授)、花田佳明(神戸芸術工科大学教授)、吉村彰(東京電機大学教授)、腰原幹雄(東京大学教授)、賀村智・和田耕一・武智和臣・三好鐵巳(日本建築学会四国支部)
(はなだ よしあき)
♦花田佳明のエッセイ「建築家・松村正恒研究と日土小学校の保存再生をめぐる個人的小史」は毎月14日に掲載します。
→他の連載記事はこちら
■花田佳明 Yoshiaki HANADA
1956年生まれ。1980年東京大学工学部建築学科卒業、1982年同大学院修士課程建築学専攻修了。日建設計を経て、1997年神戸芸術工科大学環境デザイン学科助教授、現在同教授。博士(工学)。著書に『植田実の編集現場』(ラトルズ、2005年)、『建築家・松村正恒ともうひとつのモダニズム』(鹿島出版会、2011年)、『日土小学校の保存と再生』(共編著、鹿島出版会、2016年)、『老建築稼の歩んだ道 松村正恒著作集』(編、鹿島出版会、2018年)。
●展覧会のお知らせ
『子どものための建築と空間展』
会期:2019年1月12日(土)~3月24日(日)
主催:パナソニック 汐留ミュージアム、朝日新聞社
会場構成:ヌーブ


●本日のお勧め作品は槇文彦です。
槇文彦
「THE NATIONAL MUSEUM OF MODERN ART, KYOTO 1986」
シルクスクリーン
イメージサイズ:18.2×22.3cm
シートサイズ:29.5×29.5cm
Ed.150 サインあり
※printer 久利屋グラフィック(松村宏)
こちらの作品の見積り請求、在庫確認はこちらから
※お問合せには、必ず「件名」「お名前」「連絡先(住所)」を明記してください。
●ときの忘れものは〒113-0021 東京都文京区本駒込5丁目4の1 LAS CASAS に移転しました。阿部勤設計の新しい空間についてはWEBマガジン<コラージ2017年12月号18~24頁>に特集されています。
TEL: 03-6902-9530、FAX: 03-6902-9531 E-mail:info@tokinowasuremono.com
営業時間=火曜~土曜の平日11時~19時。日・月・祝日は休廊。
JR及び南北線の駒込駅南口から約8分です。

花田佳明(神戸芸術工科大学教授)
現在、東京のパナソニック汐留ミュージアムにおいて、「子どものための建築と空間展」が開催されている(2019年1月12日(土)~3月24日(日))。明治時代から現代までの幼稚園、小中学校、公園など、子どもたちのための学びと遊びの場について考えようという企画である。小さな子どもたちが登場する写真や図面や模型などがたくさん並び、楽しくしかも見ごたえのある展覧会だ。そこに、八幡浜市立日土(ひづち)小学校という学校の白い模型が展示されている。
「子どものための建築と空間展」に展示された日土小学校の模型(写真:パナソニック汐留ミュージアム提供)この学校をご存知の方は、本ブログの読者の中におられるだろうか。八幡浜市は愛媛県にある地方都市で、四国から九州に向かって突き出た細長い佐田岬半島の根元に位置している。漁業、水産加工業、そして、「耕して天にいたる」と言われるほどに山を覆う段々畑での蜜柑栽培が有名な町だ。その中心部から北へ数キロ、山間部の谷筋を流れる喜木川という川に沿って日土小学校は建っている。
1958年に完成した2階建ての木造校舎である。そう聞くと多くの方は、下見板貼りの外壁で瓦葺きの切妻屋根、長くまっすぐな廊下に沿って薄暗い教室が並ぶ、いわゆる「懐かしの木造校舎」を連想するだろう。しかし、日土小学校はそういったイメージとは全く違う。淡いパステルカラーの外壁に水平連続窓が走る軽快な立面で、スレート瓦の切妻屋根も鶯色に塗られている。内部の壁や柱にも明るい彩色が施され、あちこちの窓から光が降り注ぐ。校舎から喜木川へ迫り出したテラスや外部階段に立てば、身も心も風景の中に溶けてしまいそうだ。
日土小学校全景(改修後。撮影:北村徹)
日土小学校川側全景(改修後。撮影:北村徹)後に詳しく述べるが、この学校は、2000年頃から始まった保存再生活動に支えられ、2009年に改修工事を終えて最新の小学校として甦った。展示されている模型は、その活動の出発点ともいえる「文化遺産としてのモダニズム建築展 ドコモモ20選」(神奈川県立近代美術館、2000年)のために、神戸芸術工科大学の学生と私で制作したものである。
私は、松村正恒が設計した日土小学校を含むいくつかの建物を1994年に見て感激して以来、松村について研究し、日土小学校の保存再生活動にも関わってきた。このたび「子どものための建築と空間展」で同校が紹介されたこともあり、以下、日土小学校、松村正恒、そして日土小学校の保存再生の概要を紹介したい。
日土小学校の模型(撮影:花田佳明)
日土小学校の模型(撮影:花田佳明)はじめに
日土小学校の校舎は、八幡浜市役所の職員であった建築家・松村正恒(1913-93年)の設計によって1958年に完成した。松村は1947年に同市に奉職したあと、1960 年に退職するまでの13年間に、多くの秀れた学校建築や病院関連施設などを設計した人物である。
日土小学校はその中でも代表作といえる建物で、竣工直後から卓越した建築計画と詩情溢れるたたずまいが注目され、建築の研究者とジャーナリズム双方から高く評価された。また松村自身も、1960年5月号の『文藝春秋』の「建築家ベストテン-日本の10人」という特集記事で、村野藤吾、前川國男、丹下健三らとともに日本を代表する10人の建築家のひとりに選ばれ、その名は広く知られるところとなった。
しかし時間の経過とともに学校建築の潮流も変化し、日土小学校について語られる機会は減っていく。また松村も、1960年に市役所を辞めて松山市に設計事務所を開設したが、建築ジャーナリズムの関心を引くような作品は少なく、次第に建築界の最前線から消えていった。
ところが1990年代にはいり、近代建築を再評価する動きが高まる中で松村に関する研究も始まり(1)、日土小学校は、1999年、DOCOMOMO Japanによって日本を代表する20のモダニズム建築のひとつに選ばれた。この20の建物を紹介した展覧会が、冒頭で述べた「文化遺産としてのモダニズム建築展 ドコモモ20選」展である。
そして、この頃から同校の保存活動が展開され、2009年に保存再生工事が完了し、今も現役の小学校として使い続けられている。
その後2012年には、保存活動の関係者に対して日本建築学会賞(業績)と、さらにニューヨークに拠点を置くワールド・モニュメント財団から、ワールド・モニュメント/ノール モダニズム賞が与えられ、日土小学校と松村正恒の名は国内外で広く知られるようになった。さらに同年、日土小学校は、戦後建築として4番目となる国の重要文化財に指定された。
日土小学校の特徴
日土小学校は長い歴史をもつ学校である。そもそもは、1875年、日土地区に開設された啓蒙学校を起源としている。その後、近隣の学校との合併や改称などをくり返し、1909年に日土尋常小学校となり、1910年4月、現在の地に校舎が建設された。これも喜木川に沿った2階建ての立派な木造校舎で、「33間の校舎」と呼ばれたと記録されている(2)。その後、1937年に講堂が敷地西側に、1949年に日土中学校が敷地東側にそれぞれ建設され、運動場をコの字型に建物が囲んだ。
そして戦後になり、1955年に西校舎が講堂の東隣りに建てられた後、中央の旧校舎を半分ずつ解体し、まずは1956年に運動場から見て右側の中(なか)校舎が、次いで1958年に左側の東校舎が、いずれも松村正恒の設計によって建設された。中校舎には、職員室、工作室、音楽室、2つの普通教室、東校舎には6つの普通教室や便所があった。
竣工直後の全景(日本建築学会蔵、松村家旧蔵)日土小学校には、いくつもの建築的な特徴がある。まずは東校舎において、教室と廊下を分離したクラスター型の教室配置を採用しているということだ。旧来の学校では、まっすぐな廊下に沿って教室が並び、当然のことながら両者は直接接している。しかし日土小学校では、それらの間に外部空間としての中庭がはさまれ、2教室がひと組になり枝状の前室を介してぶどうの房(=クラスター)のように廊下とつながっているのである。
この配置計画によって、廊下の喧騒から切り離され落ち着いた学習環境が実現するとともに、廊下と運動場双方から教室に光と風を取り入れる両面採光が実現した。教室に十分な照明設備がなかった戦後間もなくの時期において、それはきわめて切実な建築的解答だった。
クラスター型の教室配置については、当時、東京大学建築学科の吉武泰水研究室を中心に研究や実作が行われていたが、空間の完成度という点では日土小学校の方が高いと言わざるを得ない。松村は学生時代から海外の医療・福祉・教育関係の建築の最新情報をよく調べており、クラスター型教室配置という考え方も戦前から知っていたと思われる。
東校舎1階・旧昇降口まわり(改修後)。左から、昇降口、通路、中庭、教室(撮影:花田佳明)
東校舎2階・廊下まわり(改修後)。中央の窓の向こうが中庭。廊下から少し上がり右手の教室にはいる(撮影:花田佳明)
日土小学校東校舎矩計図。左から、昇降口や廊下と教室との間に中庭があることがよくわかる(八幡浜市役所蔵)構造形式にも工夫がある。日土小学校は基本的には木造だが、実際にはスチールも適宜組み合わせたハイブリッドな構造になっている。大きな空間がほしい教室ではスチールのアングル材を組み合わせたトラス梁によってスパンを飛ばし、水平剛性を確保するためには屋根面等に鉄筋の筋交いを入れるなど、工学的工夫が各所にある。
最も印象的なのは、東校舎の川に面した教室の外壁である。そこには垂れ壁も袖壁もなく、腰壁もごくわずかだ。つまり、教室のひとつの壁面がほぼ完全にガラス面となっている。しかも、外壁が柱の列から数十センチ離してあり、外壁には柱幅分の障害物すらない。しがって、オフィスビルなどで使われるカーテンウォール形式と同様に、ガラスの入った建具だけで構成された外壁となり、川側の自然と視覚的に一体となった教室が生まれている。
しかし壁がないので横方向の力には弱いため、柱の列の位置に鉄筋の筋交いを入れることで水平力に抗している。意匠的にも、木質の空間の中に交差した細い鉄筋が加わることで、緊張感ある近代的な印象の空間になったといえる。
東校舎川側の外壁(改修前)。外壁が柱から切り離されていることと鉄筋の筋交いがよくわかる(撮影:花田佳明)
東校舎1階理科室(旧普通教室。改修後)。鉄筋の筋交いは2連の新しいものに取り替えられた(撮影:北村徹)さらに、廊下、階段、図書室、川側のテラスや外部階段などのデザインは細部まで考え抜かれており、現代の建築にも類を見ない豊かさをもっている。学校内のすべての空間が、子どもたちと先生のための心地よい居場所なのだ。
東校舎階段(改修後)。ゆるやかな勾配でいつの間にか2階に着く(撮影:北村徹)
東校舎2階図書室(改修後)。様々な意匠が混在する。左の壁には輪切りにした竹で星座が描かれている(撮影:花田佳明)
東校舎2階図書室奥のベランダ(改修後)。川と山と建物が一体となる(撮影:花田佳明)松村正恒という建築家
日土小学校を設計した松村正恒は、地元愛媛県の出身である。1913年1月12日、現在の大洲市新谷町に生まれた。八幡浜市の隣町だ。実家は大洲藩に仕えた武家という立派な家だが、2歳で父親と死別し母親とも別れて暮らすなど、やや寂しい幼年時代を送っている。
1930年に地元の大洲中学校を卒業した後、2年の浪人期間を経て、1932年に武蔵高等工科学校(現・東京都市大学)建築工学科に入学した。浪人経験の挫折感を引きずり、建築を選んだ積極的理由もなく、また新設の武蔵高等工科学校への期待感も薄く、入学当初はあまり褒められた学生ではなかったようだ。しかしその後、バウハウスから帰ったばかりで同校の教員となっていた蔵田周忠の薫陶を受け、松村は建築に目覚めていく。また、川喜田煉七郎の新建築工芸学院に通って最新のデザインを学び、児童問題については独学し、さらに今和次郎の民家研究会に参加するなど、学外での活動も積極的に行った。
1935年に卒業し、松村は蔵田の勧めに従い土浦亀城建築設計事務所に就職した。そこでは、もっぱら資産家のためのいわゆる「白い家」としての近代建築の設計に携わり、1939年からは満州の新京に移転した土浦事務所に勤務して植民地生活も経験した。
一方、建築雑誌『国際建築』編集長・小山正和の知遇を得て海外文献の翻訳に携わり、国内外の最新の建築計画学的知識を独学し、さらに弱者救済の社会活動に参加するなど、自分の道を探る努力も重ねている。
そして、スタイリッシュな設計に終始する土浦の姿勢に飽き足らなくなったのか、1941年には土浦事務所を辞して農地開発営団へ移り、竹内芳太郎らの指導のもとで貧しい日本海側にある農村の住宅調査に従事した。
つまり松村は、大正デモクラシー末期の故郷を出たあと、都市化の始まった東京、戦時下の植民地、そして内地の貧しい農村を見たのである。まさに、日本の近代化の側面をひととおり経験したといえるだろう。
そして松村は、終戦とともに故郷の大洲市へ戻り、1947年に八幡浜市役所の職員となって土木課建築係に勤務した。戦前の一連の学習が、戦後における八幡浜市役所での活動の糧となったことは間違いない。
市役所での活躍はめざましく、彼が設計した建物は建築雑誌や『建築学大系』などの書物に紹介され、1960年には、すでに述べたように、『文藝春秋』によって日本を代表する10人の建築家のひとりに選ばれた。
松村は、社会正義と反骨精神に満ちた人物であり、旧態依然とした教育委員会や市議会などと闘ったエピソードが残っている。また彼は、教育や福祉の充実をめざした名市長・菊池清治に支えられた。民主化された戦後社会のあるべき姿を共有した首長と建築家の幸福な出会いがあったのだ。
八幡浜市役所時代の松村正恒。後ろは彼が設計した市立八幡浜総合病院東病棟(日本建築学会蔵、松村家旧蔵)その後松村は、1960年に八幡浜市役所を辞して松山市に設計事務所を開設した。そして、1993年に亡くなる直前まで現役を貫き、大小合わせて約400もの建物を設計した。書や狂言を愛し、近代建築の保存運動にも尽力した。機会あるごとに発せられた自在な言葉や文章は、建築あるいは建築家のあるべき姿についての儒教的ともいえる厳しい批評でもあった。
晩年の松村正恒。右は保存活動に力を注いだ日本銀行松山支店の写真(日本建築学会蔵、松村家旧蔵)しかし、この間に彼が設計した建物には日土小学校のような先鋭性はなく、市中のアノニマスなデザインと思えるものが多く、評価に迷う。独立後はコンクリート造の仕事が多くなったが、作家性の強い建築や建築家に対する批判的な思いが強い松村には、誰かの影響を受けたと思われるようなデザインができなかった上に、木造中心の市役所時代にはコンクリートによる独自のヴォキャブラリーを確立できていなかったことなどの問題があったのではないだろうか。
建築ジャーナリストで評論家の宮内嘉久によるインタビューに対し、松村は、税金でつくる公共建築では可能な限りの実験をしたが、独立後の民間の仕事では冒険はしにくいという主旨のことを答えているが(3)、胸中複雑なものがあったのではないかと私は想像している。
しかし逆に言えば、松村は他者のアイディアに頼ることなく、自らの思考の内部でデザインを行おうとした建築家とも考えられる。とくに八幡浜市役所時代の作品を丹念に分析すれば、建築計画・意匠・構造・環境工学といったさまざまな領域の知識や技術を使いこなし、一作ごとにデザインを進化させながら、自らが考えた設計手法の内部で自己参照的に、自らの学校観や建築観をひたすら空間化した結果であることがよくわかる(4)。
また、「外部」に頼らないということを象徴的に示すエピソードとして、建築評論家の神代雄一郎との対談での発言があげられる。1978年に行われ、「風土と建築」というタイトルでまとめられた対談(『ina REPORT』1978年6月号)(5)で、神代から「僕らも今回は地域にしっかり根をおろして、いい仕事をしておられる方をおたずねしているのですが、風土については、どうお考えですか」と問われたとき、松村は以下のように答えている。
私は正直いって地方とか地域とか風土とかいうことを余り意識せんのですわ。というのは、最初いうたように、それが自然の体から結果として生れればいいことでしてね。人間でも作品でも、いや味のあるのは大嫌いなんでね、自然にずっとにじみ出るのじゃないといけない。だから余りそういうことを意識せずに、どこまでも真実を追い求めんといかん。特に地方ではどうこういわんでも真実を求めたら、そこに住んでいて、その土地人の気持ち、だから作品をつくるというんじゃないしに、それを使う人の気持になればいいんでしてね。私も1つの使用者になればいいんでして、ながめるためのものではない。ただ、私がつくったものを満足して喜んで、そこからそれを土台にして人間が少しでもよくなってくれればいいという気持で、終始一貫しているんです。
また、「伝統論私見」(『国際建築』1965年1月号)という文章(6)では、おそらく川添登や丹下健三による「伝統論争」を念頭におきながら、以下のように書いている。
伝統とは、形式の問題ではない。心構えの問題だ。初めに形があるのではなく、形は結果である。伝統を越えたとか、越えぬとか、棒高跳びとは、ワケが違う。歴史の価値を学びとるには、その根にひそむものを、洞察する以外にない。そこまでの面倒を怠って、ただ、形式だけ拝借して、伝統をうけついだなどとは恐れいる。
伝統的な形を現代的に翻案し、自分の設計の中に安易に取り入れることを戒めているといってよいだろう。
いずれにしても松村は、地方、地域、風土、伝統といった建築の「外の」言葉によって自分の建築の意味が固定化、あるいは曖昧化されることを拒否し、社会や人々に奉仕する本質的デザインの必要性を主張した。日土小学校は、まさにそのような考え方の結晶であるし、さらには、近代建築の本来的な姿であるといえるだろう。
保存再生活動とその後
1990年代には、松村正恒が市役所時代に設計した木造建築の多くは解体の危機に瀕していた。八幡浜市立の病院関連施設は伝染病棟を除き既に解体されており、学校関係でも、日土小学校より規模の大きな木造建築であった江戸岡小学校の解体も迫っていた。そのような状況の中、松村を知る関係者の間には、日土小学校だけはなんとか保存したいという思いが募っていた。
そこで、1999年に日本建築学会四国支部50周年記念事業として、松村の設計した八幡浜市立江戸岡小学校で松村に関するシンポジウムが開催された。これを機に、私を含むその後の保存活動を担うメンバーのネットワークが生まれ、日土小学校の保存活動が本格化した。そして、「夏の建築学校」と名づけられた勉強会や各種シンポジウムを八幡浜で行うなど、日土小学校の価値を訴える活動が始まった。
その後、紆余曲折はあったが、八幡浜市が同校の保存再生を決断し、2006年に日本建築学会に現状調査と改修計画案の策定が委託され、そこでまとめられた内容に基づいた保存再生工事によって、2009年、日土小学校は歴史的価値と現代的な機能を両立させた小学校として甦ったのである。
具体的な改修計画に策定にあたっては、日本建築学会の中に、故・鈴木博之先生を委員長とする委員会を作り(7)、以下のようなテーマに基づきまとめていった。
[1]文化財としての価値を尊重し、基本的に当初の状態に戻す。
[2]構造補強をおこない、現行の建築基準法以上の耐震性能を確保する。
[3]東校舎の6つの普通教室の意匠は当初の状態に戻すが、実験台や調理台などを設置して特別教室に変える。
[4]中校舎の職員室まわりは改修し、運動場への見通しを確保する。
[5]中校舎の特別教室を改修して2つの普通教室とする。
[6]床の遮音性の向上、建具の改良、便所の更新など、各所の機能性を高める。
[7]4つの普通教室を確保するために新西校舎を建設する。
工事中には色々な発見があった。たとえば色彩計画については、竣工後に何回か塗られていたペンキの最下層を探索し、当初の色を確定する作業を行なった。その成果が、淡いパステルカラーで複雑に塗り分けられた現在の姿である。サッシュと外壁の色を、2期に工事が分かれた中校舎と東校舎の運動場側と川側で入れ替えるなど、建築的な操作が行われていることも確認できた。
改修工事中の様子(撮影:花田佳明)その後に生まれた評価は最初に書いたとおりである。連戦連敗が続く近代建築の保存活動における数少ない成功事例として、各方面から評価された。また地元においても、保存再生活動途中にはさまざまな意見があったが、甦った校舎は暖かく迎え入れられ、国の重要文化財となった建物を、子どもたちも先生も地域の人たちも使いこなしている。
甦った日土小学校全景。右奥に増築した新西校舎が見える(撮影:北村徹)
甦った日土小学校の川側全景。左端は増築された新西校舎(撮影:北村徹) 甦った日土小学校を中心にして、さまざまな出来事が生まれ続けている。
松村が八幡浜市役所時代に設計した建物のうち、まだ残っている旧・川之内小学校 (1950年)、旧・長谷小学校 (1953年)、 旧・八幡浜市立図書館 (1954年)、中津川公民館 (1956年)の価値を八幡浜市役所も認識し、専門家に委託して現況調査を行い報告書がまとめられた。
松村と日土小学校についての三冊の本も出た。刊行順に紹介すると、まずは私事で恐縮だが、松村正恒に関する私の博士論文を書籍化した『建築家・松村正恒ともうひとつのモダニズム』(鹿島出版会、2011年)である。松村の生い立ちから八幡浜市役所での設計活動を中心に記述・分析したもので、松村のことに関心を持たれたらまず手にしていただきたい。
次が、日土小学校の保存再生の工事報告書を書籍化した『日土小学校の保存と再生』(八幡浜市教育委員会監修/「日土小学校の保存と再生」編纂委員会編集、鹿島出版会、2016年)である。研究機関等に埋もれがちな工事報告書を、なんとか多くの方の元に届けたいという思いから、全面的に再編集し、写真家・山岸剛さんによる撮り下ろし写真も加え、保存再生の経緯や考え方から技術的なことまでの全てを記録した。写真と図面が満載なので、建築の専門の方でなくても楽しんでいただけるだろう。
3冊目は、『老建築稼の歩んだ道 松村正恒著作集』(花田佳明編、鹿島出版会、2018年)である。本稿でも少し引用した松村の言葉からおわかりかもしれないが、彼の文章や語りは独特の文体と批評性をもっていて面白い。しかし、それを読むことが難しくなっていたため、既刊の書籍、雑誌原稿、未刊原稿などから文章を選び1冊にまとめた。本書を読むと、彼と対話をした気分になるに違いない。

左から『建築家・松村正恒ともうひとつのモダニズム』、『日土小学校の保存と再生』、『老建築稼の歩んだ道 松村正恒著作集』
装丁は、『建築家・松村正恒ともうひとつのモダニズム』は間村俊一さん、『日土小学校の保存と再生』と『老建築稼の歩んだ道 松村正恒著作集』は白井敬尚さんにお願いした。いずれのブックデザインにも様々な工夫があり、解読の楽しみがある。
松村と日土小学校に関する展覧会も各地で開かれた。主なものは、東京(GALLERY A4(ギャラリー エー クワッド)、2011年)、大阪(大阪市立住まいのミュージアム 大阪くらしの今昔館、2011年)、松山(愛媛大学ミュージアム、2012年)、八幡浜(八幡浜市民ギャラリー、2013年)で、いずれにも多くの来訪者があった。
改修工事が終わった年から、春、夏、冬の長期の休みには必ず見学会が開かれている。訪問者の数は減ることなく、建築関係者から一般の方まで多くの人々が訪れている。今年度最後の見学会は3月31日(日)である。ぜひ春の四国路を訪れていただきたい。
春の日土小学校(2015年3月。撮影:花田佳明)おわりに
松村正恒についての研究と日土小学校の保存再生に長く携わって来て改めて気づくのは、彼の建築が作家性の強い個人的なデザインではないにもかかわらず、きわめて美しくしかも機能的であり、彼の言葉がいささかアクの強い独特のものであるにもかかわらず、きわめて一般性をもちしかも批評的であるというアンビバレントな事実である。多くの建築家においては、設計された建築と発せられた言葉のイメージは似ていることが多い。しかし松村の場合は両者のギャップが甚だしい。唐突な結論と思われるかもしれないが、私は彼が残したこのような建築と言葉の関係に大変興味をもっている。
最後に、本稿はネット上に掲載されるというメリットを生かし、参考になるサイトにリンクしておくのでご覧いただきたい。
●改修後の日土小学校の動画。GALLERY A4(ギャラリー エー クワッド)での展覧会時に同館が撮った動画に、ワールド・モニュメント財団が英語字幕をつけて再編集したもの。
同財団のサイト内
https://www.wmf.org/content/hizuchi-elementary-school
YouTube
●ワールド・モニュメント財団がワールド・モニュメント/ノール モダニズム賞を出したときに作成した冊子。
https://www.wmf.org/sites/default/files/article/pdfs/Modernism-Hizuchi.pdf
●八幡浜市が制作した『木造校舎、木造の公共建物の残るまち 八幡浜』という冊子のPDF
http://www.city.yawatahama.ehime.jp/docs/2016033100011/files/160331b.pdf
●八幡浜市役所のサイト内の日土小学校の見学会のお知らせページ
http://www.city.yawatahama.ehime.jp/docs/2014071000034/
●拙著『建築家・松村正恒ともうひとつのモダニズム』が日本建築学会著作賞を受賞した際に作られた業績紹介ページ。松村の八幡浜市役所時代に設計した建物の写真なども掲載。
https://www.aij.or.jp/jpn/design/2016/data/4_award_06_hanada.pdf
註(1)花田佳明「松村正恒の残したもの」『再読/日本のモダンアーキテクチャー』(彰国社、1997年)、『SD』2000年9月号(特集・木造モダニズム1930s-1950s)等。
註(2)『開校百周年記念誌 ひづち』(日土小学校開校百周年記念事業委員会、1976年)
註(3)『素描・松村正恒』(宮内嘉久編集事務所編、建築家会館、1992年)。『老建築稼の歩んだ道 松村正恒著作集』(花田佳明編、鹿島出版会、2018年)に再録。
註(4)詳しくは、拙著『建築家・松村正恒ともうひとつのモダニズム』(鹿島出版会、2011年)参照。
註(5)『老建築稼の歩んだ道 松村正恒著作集』(花田佳明編、鹿島出版会、2018年)に再録。
註(6)同上。
註(7)日本建築学会四国支部日土小学校保存再生特別委員会(所属は当時)
委員長:鈴木博之(東京大学名誉教授、青山学院大学教授)、委員:曲田清維(愛媛大学教授)、花田佳明(神戸芸術工科大学教授)、吉村彰(東京電機大学教授)、腰原幹雄(東京大学教授)、賀村智・和田耕一・武智和臣・三好鐵巳(日本建築学会四国支部)
(はなだ よしあき)
♦花田佳明のエッセイ「建築家・松村正恒研究と日土小学校の保存再生をめぐる個人的小史」は毎月14日に掲載します。
→他の連載記事はこちら
■花田佳明 Yoshiaki HANADA
1956年生まれ。1980年東京大学工学部建築学科卒業、1982年同大学院修士課程建築学専攻修了。日建設計を経て、1997年神戸芸術工科大学環境デザイン学科助教授、現在同教授。博士(工学)。著書に『植田実の編集現場』(ラトルズ、2005年)、『建築家・松村正恒ともうひとつのモダニズム』(鹿島出版会、2011年)、『日土小学校の保存と再生』(共編著、鹿島出版会、2016年)、『老建築稼の歩んだ道 松村正恒著作集』(編、鹿島出版会、2018年)。
●展覧会のお知らせ
『子どものための建築と空間展』
会期:2019年1月12日(土)~3月24日(日)
主催:パナソニック 汐留ミュージアム、朝日新聞社
会場構成:ヌーブ


●本日のお勧め作品は槇文彦です。
槇文彦「THE NATIONAL MUSEUM OF MODERN ART, KYOTO 1986」
シルクスクリーン
イメージサイズ:18.2×22.3cm
シートサイズ:29.5×29.5cm
Ed.150 サインあり
※printer 久利屋グラフィック(松村宏)
こちらの作品の見積り請求、在庫確認はこちらから
※お問合せには、必ず「件名」「お名前」「連絡先(住所)」を明記してください。
●ときの忘れものは〒113-0021 東京都文京区本駒込5丁目4の1 LAS CASAS に移転しました。阿部勤設計の新しい空間についてはWEBマガジン<コラージ2017年12月号18~24頁>に特集されています。
TEL: 03-6902-9530、FAX: 03-6902-9531 E-mail:info@tokinowasuremono.com
営業時間=火曜~土曜の平日11時~19時。日・月・祝日は休廊。
JR及び南北線の駒込駅南口から約8分です。

コメント