1月20日より、ときの忘れもので初個展を開催する杉山幸一郎さんが、ブログに初めて登場したのは2013年9月、まだ20代でした。
学生時代から彼を知る私たちですが、初めての日本人スタッフとしてスイスのピーター・ズント―のアトリエに入ったのには驚きました。
2016年4月から始まったブログの連載エッセイは大好評で、多くの方に読まれています。
あらためて総目次と掲載された写真をご紹介します(長~いです)。
●エッセイ総目次
2013年09月17日|杉山幸一郎[U-30 Under 30 Architects exhibition 2013]レポート


(図版01:展覧会場入口)
(図版02:環境を受け入れる器)
(図版03:環境器/夏の通り雨の後)
(図版04:環境器/落葉も積もる秋の宵)
(図版05:地球環境器)
2013年12月29日|杉山幸一郎「Japanese Junction展とJapanese Junction Emerging Tragectories展」
(LIXIL GINZA展示風景)
(1Fフロア展示風景)
(2Fフロア展示風景)
(3Fフロア展示風景)
(光がそよぐパビリオン2013)
杉山幸一郎のエッセイ連載「幸せにみちたくうかんを求めて」
2016年04月10日|第1回 アルプスの小さな村から





2016年05月10日|第2回 新アトリエ






2016年06月10日|第3回 The hand is back.







2016年07月10日|第4回 2つのブレゲンツ。









2016年08月10日|第5回 ルドルフの小さな革命









2016年09月10日|第6回 アルプスのモダニスト










2016年10月10日|第7回 Shinohara






2016年11月10日|第8回 "集まって住む"のお手本









2016年12月10日|第9回 スイス木工所







2017年01月10日|第10回 建築への静かな姿勢







2017年02月10日|第11回 至高のくうかん













2017年03月10日|第12回 すべてのモノに対する愛




2017年04月10日|第13回 ハルデンシュタイン










2017年05月10日|第14回 上品な納屋






2017年06月10日|第15回 グラウビュンデンの大自然







2017年07月10日|第16回 建築する手立て
2017年08月10日|第17回 ドイツの家具工場









2017年09月10日|第18回 州立美術館





2017年10月10日|第19回 祝祭の時間







2017年11月10日|第20回 軽やかなコンクリート










2017年12月10日|第21回 ライン川に架かる橋





2018年01月10日|第22回 家具製作所













2018年02月10日|第23回 クールデザイン






2018年03月10日|第24回 設計スタディについて
2018年04月10日|第25回 スイス住宅事情


2018年05月10日|第26回 当たり前(自然)であること







2018年06月10日|第27回 クールのタンポポハウス






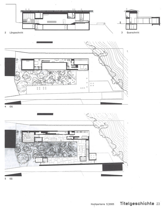
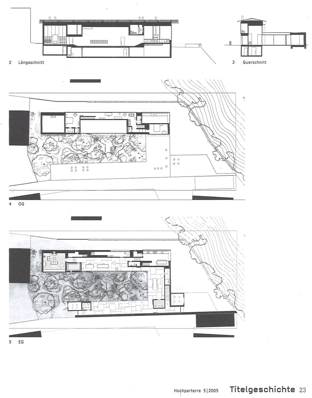
2018年07月10日|第28回 スイスの先端技術




この図を見ながら構成を見ると、上から
1.コンクリートシェル
2.カーボン筋
3.膜材
4.スチールワイヤーネット
5.アーチ部の土台とそれを支える支柱
となっています。
写真は上から順に土台、スチールワイヤーネットの交点、そして型枠が全て出来上がった様子です。
2018年08月10日|第29回 アルプスから都市へ、そしてその逆


2018年09月10日|第30回 建築デザインの引き出し

Do it+Garden Migrosから。


続いてcoop bau+hobby、


最後に≪Do it≫です。


2018年10月10日|第31回 木の量感







2018年11月10日|第32回 スイスの建築文化

2018年12月10日|第33回 建築をつくること
2019年01月10日|第34回 図面をひもとく
2019年02月10日|第35回 大雪から学んだこと

2019年03月10日|第36回 スイスでのインターン
2019年04月10日|第37回 拠って立つ土台
2019年05月10日|第38回 小さな住まい



2019年06月10日|第39回 リスボンの布




2019年07月10日|第40回 職人と建築家のあいだ



2019年08月10日|第41回 コンクリートの石ころ




2019年09月10日|第42回 チューリッヒのコルビュジエ





*図版はすべて(https://pavillon-le-corbusier.ch/en/)より
2019年10月10日|第43回 ホルゲングラールス















2019年11月10日|第44回 カランダ登頂






2019年12月10日|第45回 蕾の時期
Haus Wyss (1976)
Haus Buchli / Zumthor (1972)
Haus Dierauer (1976)
Haus Räth (1983)
2020年01月10日|第46回 新年へ滑り出し






2020年02月10日|第47回 錬金職人









2020年03月10日|第48回 建築の立面図について



2020年04月10日|第49回 カミナダ、森の小屋











2020年05月10日|第50回 働き方が変わる時 / 建築が変わる時
2020年06月10日|第51回 建物の顔

2020年07月10日|第52回 ちぐはぐで、小さくて大きいもの

2020年08月10日|第53回 素直で健康的である、建築。

2020年09月10日|第54回 ダイヤの家









2020年10月10日|第55回 熱気球にのって






2020年11月10日|第56回 ある1日。



2020年12月10日|第57回 雑誌の季節

2021年01月10日|第58回 2021

2021年02月10日|第59回 家具と建築

2021年03月10日|第60回 メンタリング
2021年04月10日|第61回 州立美術館にて




2021年05月10日|第62回 テクスチャーについて












2021年06月10日|第63回 描くツール


2021年07月10日|第64回 自然の顕れ



2021年08月10日|第65回 メルクリのペイント



2021年09月10日|第66回 床をならす



2021年10月10日|第67回 スイスの建築教育



2021年11月10日|第68回 雰囲気を感じとること

2021年12月10日|第69回 建物の芯

2022年01月10日|第70回 新年のご挨拶

●「杉山幸一郎展 スイスのかたち、日本のかたち」を開催します。
会期=2022年1月20日(木)―1月29日(土) 11:00-19:00
※会期中無休
出品全作品を1月15日ブログに掲載しました。
展覧会カタログ(テキスト=杉山幸一郎、税込み価格880円、送料250円)。

スイス・クールに在住する建築家・杉山幸一郎の初個展を開催します。
本展では、建物の表層を抽象化して線や色の面に置き換えて表現しようと試みた水彩ドローイングシリーズ〈Line & Fill〉や、ドローイングを立体化したオブジェクト、また、小さな建築のようで家具としても使える作品群をご覧いただきます。
●ときの忘れものは2017年に青山から〒113-0021 東京都文京区本駒込5丁目4の1 LAS CASAS に移転しました。もともと住宅だった阿部勤設計の建物LAS CASASを使って、企画展の開催、版画のエディション、美術書の編集等を行なっています。WEBマガジン<コラージ2017年12月号18~24頁>の特集も是非ご覧ください。
JR及び南北線の駒込駅南口から徒歩約8分です。
TEL: 03-6902-9530、FAX: 03-6902-9531
E-mail:info@tokinowasuremono.com
営業時間=火曜~土曜の平日11時~19時。*日・月・祝日は休廊。
学生時代から彼を知る私たちですが、初めての日本人スタッフとしてスイスのピーター・ズント―のアトリエに入ったのには驚きました。
2016年4月から始まったブログの連載エッセイは大好評で、多くの方に読まれています。
あらためて総目次と掲載された写真をご紹介します(長~いです)。
●エッセイ総目次
2013年09月17日|杉山幸一郎[U-30 Under 30 Architects exhibition 2013]レポート


(図版01:展覧会場入口)
(図版02:環境を受け入れる器)
(図版03:環境器/夏の通り雨の後)
(図版04:環境器/落葉も積もる秋の宵)
(図版05:地球環境器)2013年12月29日|杉山幸一郎「Japanese Junction展とJapanese Junction Emerging Tragectories展」
(LIXIL GINZA展示風景)
(1Fフロア展示風景)
(2Fフロア展示風景)
(3Fフロア展示風景)
(光がそよぐパビリオン2013)杉山幸一郎のエッセイ連載「幸せにみちたくうかんを求めて」
2016年04月10日|第1回 アルプスの小さな村から





2016年05月10日|第2回 新アトリエ






2016年06月10日|第3回 The hand is back.







2016年07月10日|第4回 2つのブレゲンツ。









2016年08月10日|第5回 ルドルフの小さな革命









2016年09月10日|第6回 アルプスのモダニスト










2016年10月10日|第7回 Shinohara






2016年11月10日|第8回 "集まって住む"のお手本









2016年12月10日|第9回 スイス木工所







2017年01月10日|第10回 建築への静かな姿勢







2017年02月10日|第11回 至高のくうかん













2017年03月10日|第12回 すべてのモノに対する愛




2017年04月10日|第13回 ハルデンシュタイン










2017年05月10日|第14回 上品な納屋






2017年06月10日|第15回 グラウビュンデンの大自然







2017年07月10日|第16回 建築する手立て
2017年08月10日|第17回 ドイツの家具工場









2017年09月10日|第18回 州立美術館





2017年10月10日|第19回 祝祭の時間







2017年11月10日|第20回 軽やかなコンクリート










2017年12月10日|第21回 ライン川に架かる橋





2018年01月10日|第22回 家具製作所













2018年02月10日|第23回 クールデザイン






2018年03月10日|第24回 設計スタディについて
2018年04月10日|第25回 スイス住宅事情


2018年05月10日|第26回 当たり前(自然)であること







2018年06月10日|第27回 クールのタンポポハウス






2018年07月10日|第28回 スイスの先端技術




この図を見ながら構成を見ると、上から1.コンクリートシェル
2.カーボン筋
3.膜材
4.スチールワイヤーネット
5.アーチ部の土台とそれを支える支柱
となっています。
写真は上から順に土台、スチールワイヤーネットの交点、そして型枠が全て出来上がった様子です。2018年08月10日|第29回 アルプスから都市へ、そしてその逆


2018年09月10日|第30回 建築デザインの引き出し

Do it+Garden Migrosから。


続いてcoop bau+hobby、


最後に≪Do it≫です。


2018年10月10日|第31回 木の量感







2018年11月10日|第32回 スイスの建築文化

2018年12月10日|第33回 建築をつくること
2019年01月10日|第34回 図面をひもとく
2019年02月10日|第35回 大雪から学んだこと

2019年03月10日|第36回 スイスでのインターン
2019年04月10日|第37回 拠って立つ土台
2019年05月10日|第38回 小さな住まい



2019年06月10日|第39回 リスボンの布




2019年07月10日|第40回 職人と建築家のあいだ



2019年08月10日|第41回 コンクリートの石ころ




2019年09月10日|第42回 チューリッヒのコルビュジエ





*図版はすべて(https://pavillon-le-corbusier.ch/en/)より2019年10月10日|第43回 ホルゲングラールス















2019年11月10日|第44回 カランダ登頂






2019年12月10日|第45回 蕾の時期
Haus Wyss (1976)
Haus Buchli / Zumthor (1972)
Haus Dierauer (1976)
Haus Räth (1983)2020年01月10日|第46回 新年へ滑り出し






2020年02月10日|第47回 錬金職人









2020年03月10日|第48回 建築の立面図について



2020年04月10日|第49回 カミナダ、森の小屋











2020年05月10日|第50回 働き方が変わる時 / 建築が変わる時
2020年06月10日|第51回 建物の顔

2020年07月10日|第52回 ちぐはぐで、小さくて大きいもの

2020年08月10日|第53回 素直で健康的である、建築。

2020年09月10日|第54回 ダイヤの家









2020年10月10日|第55回 熱気球にのって






2020年11月10日|第56回 ある1日。



2020年12月10日|第57回 雑誌の季節

2021年01月10日|第58回 2021

2021年02月10日|第59回 家具と建築

2021年03月10日|第60回 メンタリング
2021年04月10日|第61回 州立美術館にて




2021年05月10日|第62回 テクスチャーについて












2021年06月10日|第63回 描くツール


2021年07月10日|第64回 自然の顕れ



2021年08月10日|第65回 メルクリのペイント



2021年09月10日|第66回 床をならす



2021年10月10日|第67回 スイスの建築教育



2021年11月10日|第68回 雰囲気を感じとること

2021年12月10日|第69回 建物の芯

2022年01月10日|第70回 新年のご挨拶

●「杉山幸一郎展 スイスのかたち、日本のかたち」を開催します。
会期=2022年1月20日(木)―1月29日(土) 11:00-19:00
※会期中無休
出品全作品を1月15日ブログに掲載しました。
展覧会カタログ(テキスト=杉山幸一郎、税込み価格880円、送料250円)。

スイス・クールに在住する建築家・杉山幸一郎の初個展を開催します。
本展では、建物の表層を抽象化して線や色の面に置き換えて表現しようと試みた水彩ドローイングシリーズ〈Line & Fill〉や、ドローイングを立体化したオブジェクト、また、小さな建築のようで家具としても使える作品群をご覧いただきます。
●ときの忘れものは2017年に青山から〒113-0021 東京都文京区本駒込5丁目4の1 LAS CASAS に移転しました。もともと住宅だった阿部勤設計の建物LAS CASASを使って、企画展の開催、版画のエディション、美術書の編集等を行なっています。WEBマガジン<コラージ2017年12月号18~24頁>の特集も是非ご覧ください。
JR及び南北線の駒込駅南口から徒歩約8分です。
TEL: 03-6902-9530、FAX: 03-6902-9531
E-mail:info@tokinowasuremono.com
営業時間=火曜~土曜の平日11時~19時。*日・月・祝日は休廊。
コメント