磯崎新の住宅建築と勝山の二作品
稲川 直樹
3
矢野邸に続く住宅の依頼主となる貝島明夫は、『芸術新潮』の編集部に勤めながら『世界美術辞典』(1985)を編集するうちに磯崎と知り合った。すでに1960年代から磯崎の建築や『美術手帖』誌上の連載に着目し、大分や福岡の作品を見てルポルタージュを書いていた。矢野邸が竣工するとすぐに見学して、『芸術新潮』誌上で報告している(1976年2月、p.50の無署名記事)。そのなかで「こうしてボールト(ママ)にこだわってみてゆくと、この住宅、なんだか肩いからしたコンセプト・アートのように誤解されそうだが、実際はいたって淡い、中性的な「薄明」な空間だ。(中略)強引さのない、自然や生活とインティメートな空間づくりは、好感をもたれよう」と率直な共感を記している。このとき磯崎への依頼を最終的に決意したようであり、76年1月から設計が始まった。西洋建築への造詣も深く、磯崎に古典主義建築への文豪ゲーテの傾倒を教唆するばかりか、起工式の挨拶では、パラーディオのパトロン、パオロ・アルメリコがヴィラ・ロトンダの外観フリーズに刻ませた文言を引用して、これから建つ自邸への確信と自負を披露するような、磯崎建築を深く理解する人物だった。

左から:貝島邸 シルクスクリーン、貝島邸 竣工時の全景(『a+u』2020年8月)

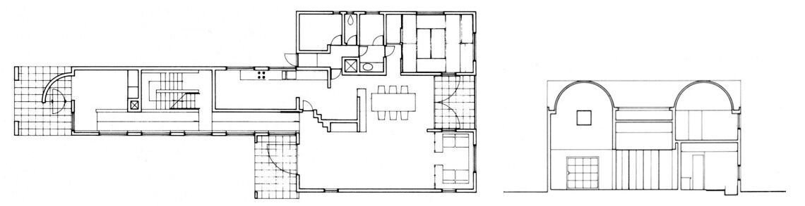
左から:貝島邸 竣工時の東側外観(『a+u』2020年8月)、貝島邸 断面図と2階平面図
建て主からの示唆もあって、貝島邸の構成は一辺7.2メートルの立方体の上に、直径3.6メートルのヴォールトが載る、荒井邸に近い断面におちついた。比例とスケールの対比を明示するため、一辺3.6メートルの立方体の門棟が置かれた。眺望のとれる2階に居間を置き、1階は子供部屋、3階に親の寝室と書斎を設けたコンパクトな断面計画である。
この住宅をシンボライズするための形態として、3階寝室を覆ってT字の半円交差ヴォールトが架けられた。内外とも白い塗装で仕上げられた結果、ヴォールト切断面の三方から採光する最上階の空間は光に満ち、マッキントッシュの「丘の家」の主寝室を想起させる。

貝島邸 居間内観(Ken Tadashi Oshima, Arata Isozaki, Phaidon 2009)

貝島邸 主寝室と書斎内観(『a+u』2020年8月)
ヴォールト屋根切断面の、方立てで三分した半円窓は、建築史では「ディオクレティアヌス窓」とか「浴場窓」と呼ばれる。ローマのディオクレティアヌス帝浴場遺跡などで、ヴォールト屋根の妻側壁面に見られることに由来する。ルネサンス期のブラマンテやラファエッロが実作に採用し、セルリオやパラーディオが『建築書』の図版に記録したことで欧米に拡散した。パラーディオの実作にも頻出する。この古典主義建築のクリシェを、ロバート・ヴェンチューリなど海外のポスト・モダニストは控えめに用いている。磯崎も富士見カントリークラブハウスや北九州図書館では、ヴォールト切断面での暗示的な使用にとどめているが、住宅では矢野邸以来なんの衒いもなく使用している。いっぽうつくばセンタービルでは、ヴォールトならぬ立方体フレームの正面にも浴場窓をアレンジして用いた。参照すべき歴史的文脈のない日本の都市空間にあっては、それは単純な幾何学図形でしかない。だが、過去に古典主義建築の長い伝統をもつ欧米における磯崎にたいする歴史主義的ポスト・モダニストのレッテル貼りは、ひとつはこうした事例の積み重ねに負っていた。

ディオクレティアヌス帝浴場遺跡 ローマ(撮影 稲川直樹)
磯崎は晩年、貝島邸を半円筒と立方体による小住宅の完成形として高く評価し、荒井邸計画や矢野邸をそこへの発展途上の段階と位置付けていた(『a+u』2020年8月、p.23)。建設時には、敷地周辺は緑に囲まれた木造1、2階の住宅が並んでいたが、その後、建て替えが進んだ。今日では井ノ頭通りに面する北側の敷地には高層集合住宅が、南と西の隣地には低層集合住宅が建て込んでいる。設計時には斜線制限のため立方体をこれ以上北に寄せられず、大窓のある南側の外壁は敷地境界から3メートル足らずとなった。この理想的ヴィラのためには、敷地は小さすぎたのである。中山邸の場合と異なり、それを承知でこの立方体住居を実施に移したのは、理解ある建て主のもとでの確信犯だった。作品を誇りとしていた建て主は、死を予期した竣工の10年ほど後に、補修と塗装をやり終えて世を去った。貝島邸でも、新築時の木製の外部建具はアルミニウム製に替えられ、正方形の増殖を特徴とした当初のデザインは失われている。
貝島邸には、実現した立方体と交差ヴォールトの案に先立つ、立方体フレームによる全く異なる初期案があった。『建築文化』1974年12月号の「反建築的ノートVI」の中で、K邸として言及される計画案である(『建築の修辞』1979、pp.110-111)。そこでは、一辺4.8メートルの立方体を三連二段に組んだ格子に、6.0メートルの二連立体格子が絡み合い、円筒型の壁がすべりこむ錯綜した様相がアクソノメトリックで描かれており、これは貝島邸初期案として『a+u』2020年8月号に掲載された、担当者・西岡弘の手による1階平面検討図にほぼ合致している。1階は子供と祖母の寝室と和室にあてられ、外部階段が2階の玄関と居間に通じていた。アクソメ図は、この平面と同大の正方形を垂直に展開して三次元フレームの形式性を与えようとしたものだが、4.8メートルと6メートルという寸法が、(6メートルを二分して中2階とする以外は)住宅の階高に馴染まない問題があった。この案を拒んだ祖母の空間を別棟とし、親子の空間を一辺7.2メートルの壁式の立方体にまとめる方向で、実施案が生まれたのである。

貝島邸 初期案概念アクソメ図(『建築文化』1974年12月)

貝島邸 初期案平面検討図(『a+u』2020年8月)
フレーム案では、約0.4メートル角の細さで描かれてはいるが、コンクリートの柱梁の否応ないスケールアウト感があった。磯崎は群馬の美術館(1974)や秀巧社ビル(1975)で、それぞれ一辺12メートルと9.6メートルのコンクリート立方体フレームで大きく空間を切り取り、中2階や壁で機能づけていく空間構成法に手ごたえを感じていた。しかしこの方法で住宅内部のヒューマン・スケールを納めるのは、容易でない。筆者は、磯崎がある設計打ち合わせの中で漏らした「コンクリートのラーメン構造は住宅には向かない」という言葉を記憶している。これは磯崎が1970年代前半に研究していた、堀口捨己による岡田邸などの初期コンクリート造住宅から得た結論であるとともに、貝島邸初期案の作業を経て得た実感だっただろう。
貝島邸の工事が始まった1976年秋、林邸の設計が始まる。依頼主は福岡市の開業医で、磯崎の重要なパトロンのひとり、福岡相互銀行(当時)の四島司頭取の紹介で依頼があった。福岡市中央区の丘陵に造成された変形敷地で、北側で道路に接し南側は崖となって開けていた。両親と子供の3人家族の住居としては、大きな規模が要求された。豪邸といってよい。建て主は磯崎と親しい間柄でなかったため、直接の打ち合わせは多くは持たれなかった。
設計は早い段階からヴォールト屋根を前提に進んだ。主屋は3.6メートル四方の正方形を並べた九つ間取りにもとづく大きな正方形であり、この上に、南に開いたコの字の交差ヴォールトを架ける。中心軸上の北には小正方形5個ぶん18メートルの細長い棟をのばし、同径のヴォールトを架けた。こうした結果、ヴォールト屋根は二刃の刺股(さすまた)の形となった。道路に接する地下1階は車庫と機械室にあてられ、1階に居間などの共用空間、2階にヴォールト天井の寝室群が置かれた。北棟先端の玄関に始まる細長いスロープが、吹抜けのある居間の大空間を対比づける。居間の南側では、高さ6メートルの擁壁上にアドルフ・ロース風のアルコーブとバルコニーが設えられて、古典主義建築でベルヴェデーレと呼ばれる展望テラスを構成した。スロープの途中では、プリズムガラスのヴォールトで覆われた階段室が、中2階の予備室と2階の寝室群に導く。

左から:林邸 シルクスクリーン、林邸 竣工時南側外観(『新建築』1978年9月)

左から:林邸 1階平面図、断面図

左から:林邸 玄関と居間をむすぶスロープと階段室(『新建築』1978年9月)、林邸 居間内観とアルコーブ(『新建築』1978年9月)
左右に突出した塔で中央の開廊(ロッジア)を挟む形式は、古代末期以来地中海地方の宮殿建築の一定型となり、ルネサンス以来の古典主義建築でヴィラ(郊外型住居)やベルヴェデーレ(展望住居)として盛んに建てられた。磯崎はこの頃から、設計した住宅をときにアナクロニズムと断りながら、ヴィラと総称した。近代の建築様式を否定し、最も単純な幾何学形態と一定の変形操作だけを頼りに設計することが、建築の普遍的な形式への接近を促すという逆説は、磯崎を古典的なタイポロジーの受容だけでなく、のちに「大文字の建築」と呼ぶようになる建築観に向かわせた。

ヴィラ・キージ、ローマ(C.L. Frommel, La Villa Farnesina a Roma, Modena 2003)
(いながわ なおき)
■稲川直樹
中部大学教授。1980年から2003年まで磯崎新アトリエ勤務。
*稲川直樹先生による「磯崎新の住宅建築と勝山の二作品」、次回第4回は7月15日に掲載予定です。
●ときの忘れものは2017年に青山から〒113-0021 東京都文京区本駒込5丁目4の1 LAS CASAS に移転しました。阿部勤が設計した個人住宅だった空間で企画展の開催、版画のエディション、美術書の編集等を行なっています(WEBマガジン コラージ2017年12月号18~24頁の特集参照)。
JR及び南北線の駒込駅南口から徒歩約8分です。
TEL: 03-6902-9530、FAX: 03-6902-9531
E-mail:info@tokinowasuremono.com
http://www.tokinowasuremono.com/
営業時間=火曜~土曜の平日11時~19時。*日・月・祝日は休廊
稲川 直樹
3
矢野邸に続く住宅の依頼主となる貝島明夫は、『芸術新潮』の編集部に勤めながら『世界美術辞典』(1985)を編集するうちに磯崎と知り合った。すでに1960年代から磯崎の建築や『美術手帖』誌上の連載に着目し、大分や福岡の作品を見てルポルタージュを書いていた。矢野邸が竣工するとすぐに見学して、『芸術新潮』誌上で報告している(1976年2月、p.50の無署名記事)。そのなかで「こうしてボールト(ママ)にこだわってみてゆくと、この住宅、なんだか肩いからしたコンセプト・アートのように誤解されそうだが、実際はいたって淡い、中性的な「薄明」な空間だ。(中略)強引さのない、自然や生活とインティメートな空間づくりは、好感をもたれよう」と率直な共感を記している。このとき磯崎への依頼を最終的に決意したようであり、76年1月から設計が始まった。西洋建築への造詣も深く、磯崎に古典主義建築への文豪ゲーテの傾倒を教唆するばかりか、起工式の挨拶では、パラーディオのパトロン、パオロ・アルメリコがヴィラ・ロトンダの外観フリーズに刻ませた文言を引用して、これから建つ自邸への確信と自負を披露するような、磯崎建築を深く理解する人物だった。

左から:貝島邸 シルクスクリーン、貝島邸 竣工時の全景(『a+u』2020年8月)

左から:貝島邸 竣工時の東側外観(『a+u』2020年8月)、貝島邸 断面図と2階平面図
建て主からの示唆もあって、貝島邸の構成は一辺7.2メートルの立方体の上に、直径3.6メートルのヴォールトが載る、荒井邸に近い断面におちついた。比例とスケールの対比を明示するため、一辺3.6メートルの立方体の門棟が置かれた。眺望のとれる2階に居間を置き、1階は子供部屋、3階に親の寝室と書斎を設けたコンパクトな断面計画である。
この住宅をシンボライズするための形態として、3階寝室を覆ってT字の半円交差ヴォールトが架けられた。内外とも白い塗装で仕上げられた結果、ヴォールト切断面の三方から採光する最上階の空間は光に満ち、マッキントッシュの「丘の家」の主寝室を想起させる。

貝島邸 居間内観(Ken Tadashi Oshima, Arata Isozaki, Phaidon 2009)

貝島邸 主寝室と書斎内観(『a+u』2020年8月)
ヴォールト屋根切断面の、方立てで三分した半円窓は、建築史では「ディオクレティアヌス窓」とか「浴場窓」と呼ばれる。ローマのディオクレティアヌス帝浴場遺跡などで、ヴォールト屋根の妻側壁面に見られることに由来する。ルネサンス期のブラマンテやラファエッロが実作に採用し、セルリオやパラーディオが『建築書』の図版に記録したことで欧米に拡散した。パラーディオの実作にも頻出する。この古典主義建築のクリシェを、ロバート・ヴェンチューリなど海外のポスト・モダニストは控えめに用いている。磯崎も富士見カントリークラブハウスや北九州図書館では、ヴォールト切断面での暗示的な使用にとどめているが、住宅では矢野邸以来なんの衒いもなく使用している。いっぽうつくばセンタービルでは、ヴォールトならぬ立方体フレームの正面にも浴場窓をアレンジして用いた。参照すべき歴史的文脈のない日本の都市空間にあっては、それは単純な幾何学図形でしかない。だが、過去に古典主義建築の長い伝統をもつ欧米における磯崎にたいする歴史主義的ポスト・モダニストのレッテル貼りは、ひとつはこうした事例の積み重ねに負っていた。

ディオクレティアヌス帝浴場遺跡 ローマ(撮影 稲川直樹)
磯崎は晩年、貝島邸を半円筒と立方体による小住宅の完成形として高く評価し、荒井邸計画や矢野邸をそこへの発展途上の段階と位置付けていた(『a+u』2020年8月、p.23)。建設時には、敷地周辺は緑に囲まれた木造1、2階の住宅が並んでいたが、その後、建て替えが進んだ。今日では井ノ頭通りに面する北側の敷地には高層集合住宅が、南と西の隣地には低層集合住宅が建て込んでいる。設計時には斜線制限のため立方体をこれ以上北に寄せられず、大窓のある南側の外壁は敷地境界から3メートル足らずとなった。この理想的ヴィラのためには、敷地は小さすぎたのである。中山邸の場合と異なり、それを承知でこの立方体住居を実施に移したのは、理解ある建て主のもとでの確信犯だった。作品を誇りとしていた建て主は、死を予期した竣工の10年ほど後に、補修と塗装をやり終えて世を去った。貝島邸でも、新築時の木製の外部建具はアルミニウム製に替えられ、正方形の増殖を特徴とした当初のデザインは失われている。
貝島邸には、実現した立方体と交差ヴォールトの案に先立つ、立方体フレームによる全く異なる初期案があった。『建築文化』1974年12月号の「反建築的ノートVI」の中で、K邸として言及される計画案である(『建築の修辞』1979、pp.110-111)。そこでは、一辺4.8メートルの立方体を三連二段に組んだ格子に、6.0メートルの二連立体格子が絡み合い、円筒型の壁がすべりこむ錯綜した様相がアクソノメトリックで描かれており、これは貝島邸初期案として『a+u』2020年8月号に掲載された、担当者・西岡弘の手による1階平面検討図にほぼ合致している。1階は子供と祖母の寝室と和室にあてられ、外部階段が2階の玄関と居間に通じていた。アクソメ図は、この平面と同大の正方形を垂直に展開して三次元フレームの形式性を与えようとしたものだが、4.8メートルと6メートルという寸法が、(6メートルを二分して中2階とする以外は)住宅の階高に馴染まない問題があった。この案を拒んだ祖母の空間を別棟とし、親子の空間を一辺7.2メートルの壁式の立方体にまとめる方向で、実施案が生まれたのである。

貝島邸 初期案概念アクソメ図(『建築文化』1974年12月)

貝島邸 初期案平面検討図(『a+u』2020年8月)
フレーム案では、約0.4メートル角の細さで描かれてはいるが、コンクリートの柱梁の否応ないスケールアウト感があった。磯崎は群馬の美術館(1974)や秀巧社ビル(1975)で、それぞれ一辺12メートルと9.6メートルのコンクリート立方体フレームで大きく空間を切り取り、中2階や壁で機能づけていく空間構成法に手ごたえを感じていた。しかしこの方法で住宅内部のヒューマン・スケールを納めるのは、容易でない。筆者は、磯崎がある設計打ち合わせの中で漏らした「コンクリートのラーメン構造は住宅には向かない」という言葉を記憶している。これは磯崎が1970年代前半に研究していた、堀口捨己による岡田邸などの初期コンクリート造住宅から得た結論であるとともに、貝島邸初期案の作業を経て得た実感だっただろう。
貝島邸の工事が始まった1976年秋、林邸の設計が始まる。依頼主は福岡市の開業医で、磯崎の重要なパトロンのひとり、福岡相互銀行(当時)の四島司頭取の紹介で依頼があった。福岡市中央区の丘陵に造成された変形敷地で、北側で道路に接し南側は崖となって開けていた。両親と子供の3人家族の住居としては、大きな規模が要求された。豪邸といってよい。建て主は磯崎と親しい間柄でなかったため、直接の打ち合わせは多くは持たれなかった。
設計は早い段階からヴォールト屋根を前提に進んだ。主屋は3.6メートル四方の正方形を並べた九つ間取りにもとづく大きな正方形であり、この上に、南に開いたコの字の交差ヴォールトを架ける。中心軸上の北には小正方形5個ぶん18メートルの細長い棟をのばし、同径のヴォールトを架けた。こうした結果、ヴォールト屋根は二刃の刺股(さすまた)の形となった。道路に接する地下1階は車庫と機械室にあてられ、1階に居間などの共用空間、2階にヴォールト天井の寝室群が置かれた。北棟先端の玄関に始まる細長いスロープが、吹抜けのある居間の大空間を対比づける。居間の南側では、高さ6メートルの擁壁上にアドルフ・ロース風のアルコーブとバルコニーが設えられて、古典主義建築でベルヴェデーレと呼ばれる展望テラスを構成した。スロープの途中では、プリズムガラスのヴォールトで覆われた階段室が、中2階の予備室と2階の寝室群に導く。

左から:林邸 シルクスクリーン、林邸 竣工時南側外観(『新建築』1978年9月)

左から:林邸 1階平面図、断面図

左から:林邸 玄関と居間をむすぶスロープと階段室(『新建築』1978年9月)、林邸 居間内観とアルコーブ(『新建築』1978年9月)
左右に突出した塔で中央の開廊(ロッジア)を挟む形式は、古代末期以来地中海地方の宮殿建築の一定型となり、ルネサンス以来の古典主義建築でヴィラ(郊外型住居)やベルヴェデーレ(展望住居)として盛んに建てられた。磯崎はこの頃から、設計した住宅をときにアナクロニズムと断りながら、ヴィラと総称した。近代の建築様式を否定し、最も単純な幾何学形態と一定の変形操作だけを頼りに設計することが、建築の普遍的な形式への接近を促すという逆説は、磯崎を古典的なタイポロジーの受容だけでなく、のちに「大文字の建築」と呼ぶようになる建築観に向かわせた。

ヴィラ・キージ、ローマ(C.L. Frommel, La Villa Farnesina a Roma, Modena 2003)
(いながわ なおき)
■稲川直樹
中部大学教授。1980年から2003年まで磯崎新アトリエ勤務。
*稲川直樹先生による「磯崎新の住宅建築と勝山の二作品」、次回第4回は7月15日に掲載予定です。
●ときの忘れものは2017年に青山から〒113-0021 東京都文京区本駒込5丁目4の1 LAS CASAS に移転しました。阿部勤が設計した個人住宅だった空間で企画展の開催、版画のエディション、美術書の編集等を行なっています(WEBマガジン コラージ2017年12月号18~24頁の特集参照)。
JR及び南北線の駒込駅南口から徒歩約8分です。
TEL: 03-6902-9530、FAX: 03-6902-9531
E-mail:info@tokinowasuremono.com
http://www.tokinowasuremono.com/
営業時間=火曜~土曜の平日11時~19時。*日・月・祝日は休廊
コメント