磯崎新の住宅建築と勝山の二作品
稲川 直樹
5
1980年頃から、磯崎に海外からの設計依頼が相次ぐようになる。その中には住宅の依頼もあった。「南フランスに建つ住宅」とニューヨークのレオ・キャステリ画廊のための「九つ間取りの住宅」の計画は、それぞれH字とU字型のヴォールトを架けていた。カリフォルニアのビョルンソン邸計画はラテン十字の交差ヴォールトを戴き、ビョルンソン・スタジオは三つの立方体の組み合わせから成る。筆者はこのうち、ビョルンソン邸とビョルンソン・スタジオの基本設計を担当した。1982年の1月から2月にかけて、磯崎がMOCA(ロサンゼルス現代美術館)の打ち合わせのため渡米する前の二週間ほどのあいだに、二作品を並行して、数回の打ち合わせで縮尺1/100の図面と模型を作成した。ヴォールト屋根と立方体のコンセプトは最初から出ていて即日設計のような作業だったが、最後は模型を納める箱を作るのに手間取って、成田に向かう磯崎に手渡したことを覚えている。これら四計画のうち唯一実現したビョルンソン・スタジオは、美術コレクターの建て主がアトリエ付きゲストハウスとして依頼し、のちに建て主自身のギャラリー付き別邸となった。敷地はロサンゼルス郊外の別荘地ヴェニスにある。三方を路地に囲まれた短冊敷地をいっぱいに使って、一辺7.2メートルの立方体二つにギャラリーを、別の一つに住居と車庫を納めている。側壁に窓はなく、立方体の頂点を斜めに切り落としてハイサイドライトとしている。大きな空間を木造で実現するため、現地で標準的なツー・バイ・フォーのバルーン構法が採用された。実施と工事監理はMOCAのため常駐していた渡辺真理さんが担当した。

左から:九つ間取りの住宅 アクソノメトリク図、南フランスに建つ住宅 アクソノメトリク図(『建築文化』1985年10月)

左から:ビョルンソン邸 アクソノメトリク図、ビョルンソン・スタジオ アクソノメトリク図(『建築文化』1985年10月)

ビョルンソン・スタジオ外観 (Arata Isozaki Architecture 1960-1990 Rizzoli 1991)
かつて「住宅は建築ではない」という挑発的な発言で住宅作家や若手建築家の反発を買った磯崎も、このころには「住宅を建築として成立させる」ための特性を「1.それ以上還元され得ない簡明な空間的形式に支えられていること。2.“家型”を想い浮かばせるような形態がにじみ出てくること。」と余裕をもって約言している。さらに、住宅作家がよく用いる「家型」の直接的採用は、「記号的に消費されつくし、悪夢またはキッチュとしてしか作用しえなくなっている」として退けた(『建築文化』1981年12月, p.83)。ここにヴォールト屋根を、住宅への自らの署名であると同時に、西洋にも通用する「大文字の建築」への保証として確立した、との磯崎の自負を見ることが可能だろう。ただし、形態上の明快で厳格な形式性を追求するいっぽうで、磯崎は使い勝手や建て主の要望にはいつも柔軟に対応した。
中山邸と荒井邸を磯崎の住宅建築の展開の第一期、矢野邸から林邸を第二期、青木邸から伊良原邸を第三期とすれば、1980年代前半の勝山の二つの住宅は、第三期のような職住併設ではないものの半公的な広間を備える共通点を持ち、第四の類型と位置付けられるかもしれない。
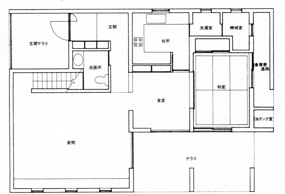
現代美術の愛好家で版画コレクターだった勝山の医師・中上光雄と陽子の夫妻は、現代版画センター(当時)の綿貫不二夫の紹介で1982年2月に、住宅の設計を磯崎に依頼した。建て主が唯一望んだのは、小さな展覧会のできるギャラリーのような広間だった。磯崎はすぐに構造設計を、福井出身の川口衞(1932-2019)に依頼した。川口は、丹下健三を支えた坪井善勝構造事務所の勤務時代に、チーフとして代々木体育館や大阪万博大屋根を担当した構造設計家である。磯崎とは学生時代からの付き合いで、処女作の大分県医師会館以来たびたび協力し、住宅では林邸と辛島邸を担当していた。とりわけ大空間の構造設計に長け、群馬県立近代美術館や富士見カントリークラブハウス、西日本総合展示場を実現し、のちにバルセロナのサンジョルディ・スポーツパレスや、なら100年会館、セラミックパークMINOなどでも協力した。
敷地は市内を東西に走る大通りの南側にあり、南北にやや長い。プライヴァシーを考慮して、北側にほぼ正方形の前庭をとり、建物を敷地のやや南寄りに配置し、南側は裏庭とすることがすぐに決まった。次いで、2階構成とし、北側に玄関とギャラリーともなる広間、階段室を、南側に食堂や厨房、和室、開廊と2階の個室を置くことが決まっていった。豪雪地帯であることから雪降ろしの容易な切妻屋根も検討されたが、最終的に直径3.6メートルの二連のヴォールト屋根が採用された。ただし、1階広間の壁と2階のヴォールトはずれていて、すき間が採光のための吹き抜けとなっている。主要な仕上げは内外とも打ち放しコンクリートである。

左から:《ヴィッラ Vol.3 NAKAGAMI HOUSE》シルクスクリーン、中上邸 1階平面図

中上邸 南東側外観(撮影:稲川直樹)
竣工にあわせて取材に訪れた建築ジャーナリストの植田実は、中上邸の広間を見上げながら「ここには磯崎さんの過去のいろんな作品がある。矢野邸の曲面壁と二本の円柱、林邸の二本のヴォールト、大分図書館の空中ブリッジ…」とつぶやいた。目新しい部分が少ない印象を述べた婉曲表現である。じっさい、この住宅には様々な先行作品の要素が見て取れる。中山邸のガラスブロック壁、青木邸の大理石障壁もそれである。南側外観のネオ・ラショナリズム風の歯形壁による開廊は新しい要素ではあるが、実現しなかった久保邸(設計時期1976-78)の二次案にあった。ヴォールトは南側では矢野邸や貝島邸のような寝室のシェルターであるいっぽう、北側では中山邸のように広間への採光装置となる。
中上邸にかぎらず、磯崎住宅の外観や空間構成は、多くの部分で古典主義的で厳格な左右対称に従う。ヴォールトや平面形式が、強い幾何学で軸性の磁場を秩序づけている。しかし、アプローチや入口、主動線は、中心軸を慎重に外して設定されており、内部動線はこの軸線を迂回し、交差することで、古典主義的なモニュメンタリズムの陥穽を回避している。

中上邸 断面図

中上邸 ホール内観(撮影:稲川直樹)

中上邸 ホールから天井とブリッジ見上げ(撮影:稲川直樹)

左から:中上邸 ホール吹抜け見下げ、中上邸 2階ブリッジ(撮影:稲川直樹)
勝山に建ったもうひとつの磯崎作品、斉藤邸は、磯崎アトリエから独立する伊東孝への餞(はなむけ)に、磯崎が基本アイデアとともに任せた住宅計画である。建て主の斉藤夫人が、中上邸を気に入って磯崎に設計依頼したという。西側の通りに面した奥行きのある敷地に計画され、主屋は敷地東にあり、新しい住宅は道路に直接面して計画された。
基本構成は一辺6.3メートルの立方体二つを東西に並べ、半分ずらしてできている。二つの立方体のずらしから空間を生成する手法は、伊良原邸や福岡相互銀行佐賀支店と同じである。道路側の立方体を2層吹抜けの居間とし、奥の立方体は2層に分けて1階に厨房と食堂、和室を、2階に寝室と水回り、夫人室などを充てている。北西と南東にできた二つの半立方体状の虚空は、玄関ポーチとテラスとなった。外部仕上げと、内部の壁面と天井の大部分が打ち放しコンクリートである。

斉藤邸 正面外観(撮影:稲川直樹)

斉藤邸 1階平面図(『新建築 住宅特集』1987年2月)
一辺約6メートルの居間の立方体は、青木邸の居間の5.4メートルより一回り高く、幅広い。天井の中央は円形ドーム状に薄く盛り上がり、上弦の弓の形のふたつのハイサイドライトが精緻に打設されたコンクリート面を照らし上げる。窓の弓形は、浴場窓の半円を天井の直線にはり付けた結果と見ることができると同時に、ドーム断面の反転形なのである。そのほかの諸室や水回り各所の空間や平面計画に感じられるゆとりは、1050ミリメートルの設計モデュールに負うものだろう。これまでにみた磯崎の住宅でこの基準寸法をとるのは斉藤邸だけであり、他はすべて900から960ミリメートルの範囲にある。伊東は、長く携わったつくばセンタービルのモデュールを、ここで採用した。住宅としては贅沢ともいえるこの寸法上のゆとりは、店舗に改修された現在、より適切なものに感じられる。

斉藤邸 居間内観(撮影:稲川直樹)

斉藤邸 居間見上げ(撮影:稲川直樹)

斉藤邸 断面図(『新建築 住宅特集』1987年2月)
構造を担当した木村俊彦(1926-2009)は、磯崎の信頼したもうひとりの構造デザイナーであり、すでにみた矢野邸と青木邸のほか、北九州市立美術館と図書館、つくばセンタービル、水戸芸術館、グランシップなどの重要作品で磯崎に協力した。伊東はすでに北九州図書館や青木邸、つくばで協働して、木村とは気心が通じていた。二つの立方体の屋根の薄いドームは、6メートル四方にスラブを架けるための木村からの提案だったようだ。このスパンに普通の厚さでコンクリートスラブを架けるには、通常なら小梁が必要である。そこで、小梁なしで3メートルの積雪荷重に耐えるため、スラブにドーム状の起(むく)りをつけたのである。起り高は中央で0.45メートルで、パラペットに蹴られて外観には現れない。内観の見上げでは起り寸法は実感できないが、放射状の型枠跡が空間に中心性と大らかな膨張の印象を与えている。

左から:斉藤邸 階段見上げ、斉藤邸 居間と階段見下げ(撮影:稲川直樹)
この連載で取りあげた住宅と同時期に実現した興味深い作品に、軽井沢の辻邦生・佐保子夫妻の別荘と磯崎と宮脇夫妻の別荘がある。どちらも木造片流れ屋根の佳品であり、計画案として発表されたことはあったが、竣工後の発表はなかった。1980年代後半から2000年、そしてそれ以降まで、磯崎は友人の芸術家や著名人、そしてアラブの王族のため、住宅の設計をすこしずつ続けた。実現した計画もしなかったものもあるが、多くは発表されなかった。発表されなかった作品は、建築家磯崎新の作品として後世に記録を残す必要を、本人が認めなかったと考えてよいだろう。
勝山には、ヴォールトと立方体という磯崎建築の二つの系譜を引き継ぐ、最後の住宅建築二棟が現存している。住宅に限らず、少なくない磯崎の建築がすでに取り壊されたなかで、地方小都市に二つの住宅が存在するのは、奇観というべきだろう。しかも二棟とも、建て主による一定期間の居住後、展示ホールや店舗として活用されるという珍しい歴史を辿っている。個人の管理を離れたこれらの小建築が、大げさに言えば文化資産としてどのように継承されていくのか、興味深く見守りたい。
(いながわ なおき)
■稲川直樹
中部大学教授。1980年から2003年まで磯崎新アトリエ勤務。
●磯崎新の住宅建築と勝山の二作品
第1回/2023年4月15日
第2回/2023年5月15日
第3回/2023年6月15日
第4回/2023年7月15日
第5回/2023年9月15日
*画廊亭主敬白
昨年12月に亡くなられた磯崎新先生が設計された住宅作品のうち(既に取り壊されたものも少なくありません)、福井県勝山に現存する二軒(中上邸イソザキホールと斉藤邸)について稲川直樹先生に詳細に論じていただきました。特に中上邸イソザキホールは稲川先生が故・藤江秀一さんと担当されたもので、竣工後も幾度か訪れています。
個人住宅が公開されることはあまりないのですが、勝山は施主の愛情と、後を引き継いだご遺族たちのご理解のおかげで、今でも見ることができるという稀有な例といえるでしょう。
私たちは竣工以来、毎年のように勝山を訪ね、幾度も建築ツアーを実施してきました。
全部ご紹介するときりがないので、そのいくつかをご紹介します。
1983年2月26日/中上邸イソザキホール竣工
1983年11月10日/中上邸イソザキホール「アンディ・ウォーホル/磯崎新展」
1999年10月15日/中上邸イソザキホール「磯崎新展」
2015年1月4日/福井県立美術館で「福井の小コレクター運動とアートフル勝山の歩み―中上光雄・陽子コレクションによる―」
2015年2月2日/酒井実通男「現代美術と磯崎建築~北陸の冬を楽しむツアー」
2015年2月27日/新人Mの「現代美術と磯崎建築~北陸の冬を楽しむツアー」レポート
2019年8月28日/中上邸イソザキホールで「磯崎新展」
2023年3月30日/スタッフMの「勝山・金沢の旅レポート~左義長祭りと磯崎新の建築」
稲川先生が文中で少し触れた「軽井沢の辻邦生・佐保子夫妻の別荘」については、先日見学会があり私たちも参加しました。松下賢太によるレポートを近日中に掲載しますので、お楽しみに。
稲川先生とご愛読いただいた皆様に感謝します。
●本日のお勧め作品は磯崎新です。

磯崎新 「ヴィッラ1」
1977年
シルクスクリーン(刷り:石田了一)
イメージサイズ:47.0×47.0cm
シートサイズ:65.0×50.0cm
Ed.100 サインあり
●ときの忘れものの建築は阿部勤先生の設計です。
建築空間についてはWEBマガジン<コラージ2017年12月号18~24頁>に特集されています。
〒113-0021 東京都文京区本駒込5丁目4の1 LAS CASAS
TEL: 03-6902-9530、FAX: 03-6902-9531 E-mail:info@tokinowasuremono.com
http://www.tokinowasuremono.com/
営業時間=火曜~土曜の平日11時~19時。日・月・祝日は休廊。
JR及び南北線の駒込駅南口から約8分です。

稲川 直樹
5
1980年頃から、磯崎に海外からの設計依頼が相次ぐようになる。その中には住宅の依頼もあった。「南フランスに建つ住宅」とニューヨークのレオ・キャステリ画廊のための「九つ間取りの住宅」の計画は、それぞれH字とU字型のヴォールトを架けていた。カリフォルニアのビョルンソン邸計画はラテン十字の交差ヴォールトを戴き、ビョルンソン・スタジオは三つの立方体の組み合わせから成る。筆者はこのうち、ビョルンソン邸とビョルンソン・スタジオの基本設計を担当した。1982年の1月から2月にかけて、磯崎がMOCA(ロサンゼルス現代美術館)の打ち合わせのため渡米する前の二週間ほどのあいだに、二作品を並行して、数回の打ち合わせで縮尺1/100の図面と模型を作成した。ヴォールト屋根と立方体のコンセプトは最初から出ていて即日設計のような作業だったが、最後は模型を納める箱を作るのに手間取って、成田に向かう磯崎に手渡したことを覚えている。これら四計画のうち唯一実現したビョルンソン・スタジオは、美術コレクターの建て主がアトリエ付きゲストハウスとして依頼し、のちに建て主自身のギャラリー付き別邸となった。敷地はロサンゼルス郊外の別荘地ヴェニスにある。三方を路地に囲まれた短冊敷地をいっぱいに使って、一辺7.2メートルの立方体二つにギャラリーを、別の一つに住居と車庫を納めている。側壁に窓はなく、立方体の頂点を斜めに切り落としてハイサイドライトとしている。大きな空間を木造で実現するため、現地で標準的なツー・バイ・フォーのバルーン構法が採用された。実施と工事監理はMOCAのため常駐していた渡辺真理さんが担当した。

左から:九つ間取りの住宅 アクソノメトリク図、南フランスに建つ住宅 アクソノメトリク図(『建築文化』1985年10月)

左から:ビョルンソン邸 アクソノメトリク図、ビョルンソン・スタジオ アクソノメトリク図(『建築文化』1985年10月)

ビョルンソン・スタジオ外観 (Arata Isozaki Architecture 1960-1990 Rizzoli 1991)
かつて「住宅は建築ではない」という挑発的な発言で住宅作家や若手建築家の反発を買った磯崎も、このころには「住宅を建築として成立させる」ための特性を「1.それ以上還元され得ない簡明な空間的形式に支えられていること。2.“家型”を想い浮かばせるような形態がにじみ出てくること。」と余裕をもって約言している。さらに、住宅作家がよく用いる「家型」の直接的採用は、「記号的に消費されつくし、悪夢またはキッチュとしてしか作用しえなくなっている」として退けた(『建築文化』1981年12月, p.83)。ここにヴォールト屋根を、住宅への自らの署名であると同時に、西洋にも通用する「大文字の建築」への保証として確立した、との磯崎の自負を見ることが可能だろう。ただし、形態上の明快で厳格な形式性を追求するいっぽうで、磯崎は使い勝手や建て主の要望にはいつも柔軟に対応した。
中山邸と荒井邸を磯崎の住宅建築の展開の第一期、矢野邸から林邸を第二期、青木邸から伊良原邸を第三期とすれば、1980年代前半の勝山の二つの住宅は、第三期のような職住併設ではないものの半公的な広間を備える共通点を持ち、第四の類型と位置付けられるかもしれない。
現代美術の愛好家で版画コレクターだった勝山の医師・中上光雄と陽子の夫妻は、現代版画センター(当時)の綿貫不二夫の紹介で1982年2月に、住宅の設計を磯崎に依頼した。建て主が唯一望んだのは、小さな展覧会のできるギャラリーのような広間だった。磯崎はすぐに構造設計を、福井出身の川口衞(1932-2019)に依頼した。川口は、丹下健三を支えた坪井善勝構造事務所の勤務時代に、チーフとして代々木体育館や大阪万博大屋根を担当した構造設計家である。磯崎とは学生時代からの付き合いで、処女作の大分県医師会館以来たびたび協力し、住宅では林邸と辛島邸を担当していた。とりわけ大空間の構造設計に長け、群馬県立近代美術館や富士見カントリークラブハウス、西日本総合展示場を実現し、のちにバルセロナのサンジョルディ・スポーツパレスや、なら100年会館、セラミックパークMINOなどでも協力した。
敷地は市内を東西に走る大通りの南側にあり、南北にやや長い。プライヴァシーを考慮して、北側にほぼ正方形の前庭をとり、建物を敷地のやや南寄りに配置し、南側は裏庭とすることがすぐに決まった。次いで、2階構成とし、北側に玄関とギャラリーともなる広間、階段室を、南側に食堂や厨房、和室、開廊と2階の個室を置くことが決まっていった。豪雪地帯であることから雪降ろしの容易な切妻屋根も検討されたが、最終的に直径3.6メートルの二連のヴォールト屋根が採用された。ただし、1階広間の壁と2階のヴォールトはずれていて、すき間が採光のための吹き抜けとなっている。主要な仕上げは内外とも打ち放しコンクリートである。

左から:《ヴィッラ Vol.3 NAKAGAMI HOUSE》シルクスクリーン、中上邸 1階平面図

中上邸 南東側外観(撮影:稲川直樹)
竣工にあわせて取材に訪れた建築ジャーナリストの植田実は、中上邸の広間を見上げながら「ここには磯崎さんの過去のいろんな作品がある。矢野邸の曲面壁と二本の円柱、林邸の二本のヴォールト、大分図書館の空中ブリッジ…」とつぶやいた。目新しい部分が少ない印象を述べた婉曲表現である。じっさい、この住宅には様々な先行作品の要素が見て取れる。中山邸のガラスブロック壁、青木邸の大理石障壁もそれである。南側外観のネオ・ラショナリズム風の歯形壁による開廊は新しい要素ではあるが、実現しなかった久保邸(設計時期1976-78)の二次案にあった。ヴォールトは南側では矢野邸や貝島邸のような寝室のシェルターであるいっぽう、北側では中山邸のように広間への採光装置となる。
中上邸にかぎらず、磯崎住宅の外観や空間構成は、多くの部分で古典主義的で厳格な左右対称に従う。ヴォールトや平面形式が、強い幾何学で軸性の磁場を秩序づけている。しかし、アプローチや入口、主動線は、中心軸を慎重に外して設定されており、内部動線はこの軸線を迂回し、交差することで、古典主義的なモニュメンタリズムの陥穽を回避している。

中上邸 断面図

中上邸 ホール内観(撮影:稲川直樹)

中上邸 ホールから天井とブリッジ見上げ(撮影:稲川直樹)

左から:中上邸 ホール吹抜け見下げ、中上邸 2階ブリッジ(撮影:稲川直樹)
勝山に建ったもうひとつの磯崎作品、斉藤邸は、磯崎アトリエから独立する伊東孝への餞(はなむけ)に、磯崎が基本アイデアとともに任せた住宅計画である。建て主の斉藤夫人が、中上邸を気に入って磯崎に設計依頼したという。西側の通りに面した奥行きのある敷地に計画され、主屋は敷地東にあり、新しい住宅は道路に直接面して計画された。
基本構成は一辺6.3メートルの立方体二つを東西に並べ、半分ずらしてできている。二つの立方体のずらしから空間を生成する手法は、伊良原邸や福岡相互銀行佐賀支店と同じである。道路側の立方体を2層吹抜けの居間とし、奥の立方体は2層に分けて1階に厨房と食堂、和室を、2階に寝室と水回り、夫人室などを充てている。北西と南東にできた二つの半立方体状の虚空は、玄関ポーチとテラスとなった。外部仕上げと、内部の壁面と天井の大部分が打ち放しコンクリートである。

斉藤邸 正面外観(撮影:稲川直樹)

斉藤邸 1階平面図(『新建築 住宅特集』1987年2月)
一辺約6メートルの居間の立方体は、青木邸の居間の5.4メートルより一回り高く、幅広い。天井の中央は円形ドーム状に薄く盛り上がり、上弦の弓の形のふたつのハイサイドライトが精緻に打設されたコンクリート面を照らし上げる。窓の弓形は、浴場窓の半円を天井の直線にはり付けた結果と見ることができると同時に、ドーム断面の反転形なのである。そのほかの諸室や水回り各所の空間や平面計画に感じられるゆとりは、1050ミリメートルの設計モデュールに負うものだろう。これまでにみた磯崎の住宅でこの基準寸法をとるのは斉藤邸だけであり、他はすべて900から960ミリメートルの範囲にある。伊東は、長く携わったつくばセンタービルのモデュールを、ここで採用した。住宅としては贅沢ともいえるこの寸法上のゆとりは、店舗に改修された現在、より適切なものに感じられる。

斉藤邸 居間内観(撮影:稲川直樹)

斉藤邸 居間見上げ(撮影:稲川直樹)

斉藤邸 断面図(『新建築 住宅特集』1987年2月)
構造を担当した木村俊彦(1926-2009)は、磯崎の信頼したもうひとりの構造デザイナーであり、すでにみた矢野邸と青木邸のほか、北九州市立美術館と図書館、つくばセンタービル、水戸芸術館、グランシップなどの重要作品で磯崎に協力した。伊東はすでに北九州図書館や青木邸、つくばで協働して、木村とは気心が通じていた。二つの立方体の屋根の薄いドームは、6メートル四方にスラブを架けるための木村からの提案だったようだ。このスパンに普通の厚さでコンクリートスラブを架けるには、通常なら小梁が必要である。そこで、小梁なしで3メートルの積雪荷重に耐えるため、スラブにドーム状の起(むく)りをつけたのである。起り高は中央で0.45メートルで、パラペットに蹴られて外観には現れない。内観の見上げでは起り寸法は実感できないが、放射状の型枠跡が空間に中心性と大らかな膨張の印象を与えている。

左から:斉藤邸 階段見上げ、斉藤邸 居間と階段見下げ(撮影:稲川直樹)
この連載で取りあげた住宅と同時期に実現した興味深い作品に、軽井沢の辻邦生・佐保子夫妻の別荘と磯崎と宮脇夫妻の別荘がある。どちらも木造片流れ屋根の佳品であり、計画案として発表されたことはあったが、竣工後の発表はなかった。1980年代後半から2000年、そしてそれ以降まで、磯崎は友人の芸術家や著名人、そしてアラブの王族のため、住宅の設計をすこしずつ続けた。実現した計画もしなかったものもあるが、多くは発表されなかった。発表されなかった作品は、建築家磯崎新の作品として後世に記録を残す必要を、本人が認めなかったと考えてよいだろう。
勝山には、ヴォールトと立方体という磯崎建築の二つの系譜を引き継ぐ、最後の住宅建築二棟が現存している。住宅に限らず、少なくない磯崎の建築がすでに取り壊されたなかで、地方小都市に二つの住宅が存在するのは、奇観というべきだろう。しかも二棟とも、建て主による一定期間の居住後、展示ホールや店舗として活用されるという珍しい歴史を辿っている。個人の管理を離れたこれらの小建築が、大げさに言えば文化資産としてどのように継承されていくのか、興味深く見守りたい。
(いながわ なおき)
■稲川直樹
中部大学教授。1980年から2003年まで磯崎新アトリエ勤務。
●磯崎新の住宅建築と勝山の二作品
第1回/2023年4月15日
第2回/2023年5月15日
第3回/2023年6月15日
第4回/2023年7月15日
第5回/2023年9月15日
*画廊亭主敬白
昨年12月に亡くなられた磯崎新先生が設計された住宅作品のうち(既に取り壊されたものも少なくありません)、福井県勝山に現存する二軒(中上邸イソザキホールと斉藤邸)について稲川直樹先生に詳細に論じていただきました。特に中上邸イソザキホールは稲川先生が故・藤江秀一さんと担当されたもので、竣工後も幾度か訪れています。
個人住宅が公開されることはあまりないのですが、勝山は施主の愛情と、後を引き継いだご遺族たちのご理解のおかげで、今でも見ることができるという稀有な例といえるでしょう。
私たちは竣工以来、毎年のように勝山を訪ね、幾度も建築ツアーを実施してきました。
全部ご紹介するときりがないので、そのいくつかをご紹介します。
1983年2月26日/中上邸イソザキホール竣工
1983年11月10日/中上邸イソザキホール「アンディ・ウォーホル/磯崎新展」
1999年10月15日/中上邸イソザキホール「磯崎新展」
2015年1月4日/福井県立美術館で「福井の小コレクター運動とアートフル勝山の歩み―中上光雄・陽子コレクションによる―」
2015年2月2日/酒井実通男「現代美術と磯崎建築~北陸の冬を楽しむツアー」
2015年2月27日/新人Mの「現代美術と磯崎建築~北陸の冬を楽しむツアー」レポート
2019年8月28日/中上邸イソザキホールで「磯崎新展」
2023年3月30日/スタッフMの「勝山・金沢の旅レポート~左義長祭りと磯崎新の建築」
稲川先生が文中で少し触れた「軽井沢の辻邦生・佐保子夫妻の別荘」については、先日見学会があり私たちも参加しました。松下賢太によるレポートを近日中に掲載しますので、お楽しみに。
稲川先生とご愛読いただいた皆様に感謝します。
●本日のお勧め作品は磯崎新です。

磯崎新 「ヴィッラ1」
1977年
シルクスクリーン(刷り:石田了一)
イメージサイズ:47.0×47.0cm
シートサイズ:65.0×50.0cm
Ed.100 サインあり
●ときの忘れものの建築は阿部勤先生の設計です。
建築空間についてはWEBマガジン<コラージ2017年12月号18~24頁>に特集されています。
〒113-0021 東京都文京区本駒込5丁目4の1 LAS CASAS
TEL: 03-6902-9530、FAX: 03-6902-9531 E-mail:info@tokinowasuremono.com
http://www.tokinowasuremono.com/
営業時間=火曜~土曜の平日11時~19時。日・月・祝日は休廊。
JR及び南北線の駒込駅南口から約8分です。

コメント