磯崎新の住宅建築と勝山の二作品
稲川 直樹
2
1970年の春、大阪万国博覧会の開会まもなく磯崎は疲労困憊から倒れ、長期間寝込むことになった。自ら「近代建築への卒業設計」と呼んだ大分県立図書館を実現したあとも磯崎は、丹下健三のためスコピエ復興計画や大阪万博基幹施設の演出装置の設計で、師による爛熟期の近代建築の実現のため協力していた。だがいっぽうでは、『美術手帖』誌上で「近代建築の解体」症候群を、海外の同世代建築家たちの作品や計画から抽出してレポートするという二律背反を体現しつつあった。1968年のミラノ・トリエンナーレでは、廃墟と化した未来都市のコラージュを展示した会場が占拠される事件に遭遇し、批判者であるつもりが体制側に組み込まれるという自らの立場を否応なく認識した。とりわけ、大阪万博の会場計画に初期段階からかかわっていた磯崎は、「見えない都市」の実現という初期案の革新的な提案がテクノクラートたちによって骨抜きにされていくのを目の当たりにし、「人類の進歩と調和」という統一テーマや担当施設への「お祭り広場」という命名に反発しながら、心情的に脱落し、疎外感さえ感じつつ、責任を果たすだけのため駆けずり回り、挙げ句に倒れ込んだのである。
磯崎をほぼ10年周期で襲う危機であり、肉体上だけでなく創作上の危機でもあった。
静養するなかで磯崎は1960年代に発表した文章を整理し、翌1971年2月に『空間へ』として出版する。この記念碑的著作は、近代建築の解体を宣告したと評された。同年11月には60年代を締め括る作品、とはいえ、もはや捨て去った末端肥大的マニエリスムを主調とした、福岡相互銀行本店(現・西日本シティ銀行、2020年に取り壊し)が竣工した。翌72年4月には『建築文化』に「反建築的ノート」の連載を開始する。連載初回の「前口上」は「もう何も作れなくなった。だれに話してもしようがあるまい。そしていったい何をやれというのか。」と始まる。この連載は、設計という創作の現場における思考の歩みの赤裸々な報告である。このころ、群馬県立近代美術館などの設計をとおして、磯崎は新しい方法を模索していく。そして立方体と直方体、円筒という幾何学的「原質」を、特定の「手法(マニエラ)」による一連のプロセスで変形し、形式が自己生成したような形態に建築を収斂させていく方法をあみだしていった。この時期に、北九州市立中央図書館や富士見カントリー・クラブハウスと並行して、同じヴォールト屋根をもつ一棟の住宅が設計された。
荒井邸計画から約5年後の1973年2月、矢野邸の設計は始まった。建て主の矢野純一は、『朝日ジャーナル』の編集部にあって国際的な芸術文化誌の創刊準備に携わるなかで、編集同人候補の磯崎と知り合っていた。雑誌は実現しなかったが、長い付き合いの中で住宅の設計は自然に決まったという。川崎市内の丘陵の南斜面にある敷地は、雑木林に覆われていた。眼科医だった夫人の診療所の設計がすぐにまとまり、先行して木造で建てられた。

磯崎新《ヴィッラYa》1978年 シルクスクリーン

矢野邸 竣工時外観(『新建築』1976年4月)
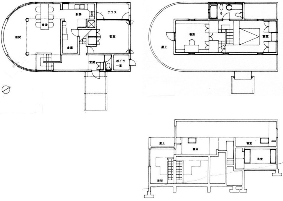
外観は寡黙である。林のなかに、白い曲面壁とひとまわり小さな半円筒の屋根が浮かんでいる。玄関を示すポーチ以外に突出した要素はなく、滑らかな外観には正方形や雁行形を組み合わせた窓が左右対称に開いている。居間を囲む曲面壁は、屋根のヴォールトの二倍の7.2メートル径の半円筒である。居間の両開き扉の外にはテラスもバルコニーも、庇さえなく、日本建築の美質である建築内部と外部空間との融和の気配はない。磯崎はこの形態を説明して、荒井邸の正方形と円形から成る断面を、円形の下部を直線の床と壁に置き換え、水平に引き延ばしたものであり、これによって観念的な図式にすぎなかったものが建築になったと述べた。内外とも白の塗装で仕上げられることで、材質感が消え、形態の概念性が浮き上がる。
外観とは対照的に、内部空間の構成は複雑かつ巧妙である。敷地の勾配に合わせて、居間から玄関と客間、浴室、書斎、寝室と、高さが異なる五つの床が、螺旋状の廊下と階段で滑らかに繋がれる。1階の居間から寝室まで、空間が扉なしで連続するだけでなく、のちの貝島邸や林邸のようにヴォールト天井がガラススクリーンで区画されることもない。玄関から寝室まで移動するにつれ、ヴォールトの起拱点(曲面の始まる高さ)は床から3.3メートルから0.9メートルまで変化し、両端の窓から入る光がヴォールト内部を薄暮で満たす。

矢野邸 1階、2階平面図と断面図

矢野邸 設計案2階平面図(『建築文化』1974年12月)
玄関から床レヴェルをずらしながら螺旋状に上昇する特徴ある空間構成は、設計がかなり進んだ段階で現れた。着工の半年ほど前の設計案(「反建築的ノートⅥ」『建築文化』1974年12月)は明確な2階建てであり、玄関は居間と同じ1階にあって、2階中央部では十字状の廊下が書斎と寝室、浴室、客間を結んでいたのである。この決定的に重要な変更はアドルフ・ロースの空間からの影響を推測させるが、担当した西岡弘によれば、あくまで敷地の勾配に馴染ませるための検討結果だった。じっさい、玄関を1階に置く先行案では、玄関ポーチは地面に半分埋まり、両側は低い擁壁になっていた。玄関の高さを1階と2階の中間に設定したことが、玄関を地表高さに無理なく一致させるだけでなく、この場所にあった書斎を居間の上に移動し、客室と寝室を上下に重ねる結果を生み、螺旋状空間の生成の鍵となったのである。

左:矢野邸 玄関ポーチまわり(『新建築』1976年4月)
右:矢野邸 玄関から居間をみる(『新建築』1976年4月)

矢野邸 居間内観(『芸術新潮』1972年2月)
ヴォールト屋根は、矢野邸よりやや遅れて設計が始まり先行して竣工した二作品、富士見カントリー・クラブハウス(1974)と北九州市立中央図書館(1974)でも採用された。矢野邸の設計は2年以上も続いたが、1年目の1973年は群馬県立近代美術館と北九州市立美術館の工事が続くかたわらで、富士見と北九州図書館の設計が始まり、どちらも同年のうちに着工したから、矢野邸の設計はあとに回されただろう。記録はないが、三作品の設計案のなかで最初にヴォールトが現れたのは矢野邸だったようだ。長い設計期間中「基本的なイメージに変更が加えられることはなかった」(『新建築』1976年4月、p.174)という建て主・矢野の証言は、当初からヴォールト屋根があったことを示唆しており、西岡弘もまた、ヴォールト屋根は記憶に残る設計の最も早い段階からあったと述べているからだ。
矢野邸の外観構成や内部空間に、1960年代後半の磯崎がパリの古本屋で購入した、フランス革命期の建築家クロード・ニコラ・ルドゥーの設計図集や、ハンス・ホラインの案内でウィーンで見た、20世紀初頭のアドルフ・ロースの住宅の反映を見出すのは容易である。しかし磯崎は、ヴォールトの採用は歴史的建築への意識的な参照の結果ではなかった、と述べている。半円ヴォールトは、地中海沿岸地方のヴァナキュラーな民家や中世ロマネスクの聖堂にもよく見られる。だがこれらのヴォールトが石や煉瓦で屋根を架ける組積造の構法であるのにたいし、コンクリート造の住宅でわずか3.6メートルの幅にヴォールトを使用する構造上の必然性はない。まして当初は木造で計画された矢野邸にヴォールトを採用することは、純粋に形態や空間の欲求から以外になかった。

左:矢野邸 書斎内観と屋上出口(『新建築』1976年4月)
右:矢野邸 寝室から書斎をみる(『新建築』1976年4月)
筆者は1981年に、改修工事のため矢野邸に何度か入る機会をもった。竣工後5年を経て外部建具に傷みが目立ったためである。福岡相互銀行増築工事のため九州に移った西岡弘からひき継いだ。新築時に木製で設けられた外部建具枠の多くは、ディテイル感を消すため庇なしの外壁に面一で納められ、壁と同じ白の塗装で仕上げられたため、浸み込んだ雨水で腐食が進んでいた。また、大きな外壁の断熱対策が十分でなかったのだろう、矢野さんはヒーター用の石油代が嵩(かさ)むことをこぼしていた。建具をステンレス製に替えるとともに、窓ガラスを可能なかぎりペアガラスにしたが、どれほどの効果があっただろうか。それはともかく、居間の曲面壁から階段を回って寝室のヴォールトへと、滑らかに連続する空間が湛えていた独特な静謐さの印象はいまも記憶に残る。
のちに仕事のため滞在したバルセロナで、筆者は矢野さんに何度か会った。退職後にバルセロナに別宅を構えた矢野さんは、写真家の田沼武能を誘(いざな)ってカタルーニャのロマネスク聖堂やサンティアゴ・デ・コンポステーラへの巡礼路を取材していた。その成果は、のちにいくつかの著作となった。1998年頃に矢野邸を訪れた藤森照信が、記録を残している(『TOTO通信』1999年vol. 1、『藤森照信の原・現代住宅再見 2』TOTO出版 2003)。掲載写真にみる矢野邸は、筆者の記憶とは大きく異なる。雑木の繁茂が著しいこととともに、居間といわず寝室といわずモノが溢れているが、よく見ると、多くはバルセロナからの引き揚げ時に持ち帰った未整理の品々のようだ。藤森は矢野邸の空間を、「ガランドウ」で「ホテルか美術館のロビー」のようだと評している。磯崎の住宅の特徴である大ぶりなスケール感と、壁で包み込みながら素っ気ない空間の印象をよく捉えている。日本の住宅に普通にみられる可動間仕切りや棚、フローリング、畳、カーテンといった、人にまとわりつくような生活臭のある設(しつら)えはない。それらはインテリアであり、磯崎にとっては床と壁、天井、窓がかたち作る比例と空間が建築だった。
2010年代半ばに住み手を失った住宅は、残念なことに、雑木林ごと壊されて数軒の建売住宅になった。
(いながわ なおき)
■稲川直樹
中部大学教授。1980年から2003年まで磯崎新アトリエ勤務。
*稲川直樹先生による「磯崎新の住宅建築と勝山の二作品」第2回を掲載しました。第1回は4月15日ブログをお読みください。次回第3回は6月15日に掲載予定です。
●倉俣史朗の限定本『倉俣史朗 カイエ Shiro Kuramata Cahier 1-2 』を刊行しました。
限定部数:365部(各冊番号入り)
監修:倉俣美恵子、植田実
執筆:倉俣史朗、植田実、堀江敏幸
アートディレクション&デザイン:岡本一宣デザイン事務所
体裁:25.7×25.7cm、64頁、和英併記、スケッチブック・ノートブックは日本語のみ
価格:7,700円(税込) 送料1,000円
詳細は3月24日ブログをご参照ください。
お申込みはこちらから
●ジョナス・メカスの映像作品27点を収録した8枚組のボックスセット「JONAS MEKAS : DIARIES, NOTES & SKETCHES VOL. 1-8 (Blu-Ray版/DVD版)」を販売しています。
映像フォーマット:Blu-Ray、リージョンフリー/DVD PAL、リージョンフリー
各作品の撮影形式:16mmフィルム、ビデオ
制作年:1963~2014年
合計再生時間:1,262分
価格等については、3月4日ブログをご参照ください。
●ときの忘れものは2017年に青山から〒113-0021 東京都文京区本駒込5丁目4の1 LAS CASAS に移転しました。阿部勤が設計した個人住宅だった空間で企画展の開催、版画のエディション、美術書の編集等を行なっています(WEBマガジン コラージ2017年12月号18~24頁の特集参照)。
JR及び南北線の駒込駅南口から徒歩約8分です。
TEL: 03-6902-9530、FAX: 03-6902-9531
E-mail:info@tokinowasuremono.com
http://www.tokinowasuremono.com/
営業時間=火曜~土曜の平日11時~19時。*日・月・祝日は休廊
稲川 直樹
2
1970年の春、大阪万国博覧会の開会まもなく磯崎は疲労困憊から倒れ、長期間寝込むことになった。自ら「近代建築への卒業設計」と呼んだ大分県立図書館を実現したあとも磯崎は、丹下健三のためスコピエ復興計画や大阪万博基幹施設の演出装置の設計で、師による爛熟期の近代建築の実現のため協力していた。だがいっぽうでは、『美術手帖』誌上で「近代建築の解体」症候群を、海外の同世代建築家たちの作品や計画から抽出してレポートするという二律背反を体現しつつあった。1968年のミラノ・トリエンナーレでは、廃墟と化した未来都市のコラージュを展示した会場が占拠される事件に遭遇し、批判者であるつもりが体制側に組み込まれるという自らの立場を否応なく認識した。とりわけ、大阪万博の会場計画に初期段階からかかわっていた磯崎は、「見えない都市」の実現という初期案の革新的な提案がテクノクラートたちによって骨抜きにされていくのを目の当たりにし、「人類の進歩と調和」という統一テーマや担当施設への「お祭り広場」という命名に反発しながら、心情的に脱落し、疎外感さえ感じつつ、責任を果たすだけのため駆けずり回り、挙げ句に倒れ込んだのである。
磯崎をほぼ10年周期で襲う危機であり、肉体上だけでなく創作上の危機でもあった。
静養するなかで磯崎は1960年代に発表した文章を整理し、翌1971年2月に『空間へ』として出版する。この記念碑的著作は、近代建築の解体を宣告したと評された。同年11月には60年代を締め括る作品、とはいえ、もはや捨て去った末端肥大的マニエリスムを主調とした、福岡相互銀行本店(現・西日本シティ銀行、2020年に取り壊し)が竣工した。翌72年4月には『建築文化』に「反建築的ノート」の連載を開始する。連載初回の「前口上」は「もう何も作れなくなった。だれに話してもしようがあるまい。そしていったい何をやれというのか。」と始まる。この連載は、設計という創作の現場における思考の歩みの赤裸々な報告である。このころ、群馬県立近代美術館などの設計をとおして、磯崎は新しい方法を模索していく。そして立方体と直方体、円筒という幾何学的「原質」を、特定の「手法(マニエラ)」による一連のプロセスで変形し、形式が自己生成したような形態に建築を収斂させていく方法をあみだしていった。この時期に、北九州市立中央図書館や富士見カントリー・クラブハウスと並行して、同じヴォールト屋根をもつ一棟の住宅が設計された。
荒井邸計画から約5年後の1973年2月、矢野邸の設計は始まった。建て主の矢野純一は、『朝日ジャーナル』の編集部にあって国際的な芸術文化誌の創刊準備に携わるなかで、編集同人候補の磯崎と知り合っていた。雑誌は実現しなかったが、長い付き合いの中で住宅の設計は自然に決まったという。川崎市内の丘陵の南斜面にある敷地は、雑木林に覆われていた。眼科医だった夫人の診療所の設計がすぐにまとまり、先行して木造で建てられた。

磯崎新《ヴィッラYa》1978年 シルクスクリーン

矢野邸 竣工時外観(『新建築』1976年4月)
外観は寡黙である。林のなかに、白い曲面壁とひとまわり小さな半円筒の屋根が浮かんでいる。玄関を示すポーチ以外に突出した要素はなく、滑らかな外観には正方形や雁行形を組み合わせた窓が左右対称に開いている。居間を囲む曲面壁は、屋根のヴォールトの二倍の7.2メートル径の半円筒である。居間の両開き扉の外にはテラスもバルコニーも、庇さえなく、日本建築の美質である建築内部と外部空間との融和の気配はない。磯崎はこの形態を説明して、荒井邸の正方形と円形から成る断面を、円形の下部を直線の床と壁に置き換え、水平に引き延ばしたものであり、これによって観念的な図式にすぎなかったものが建築になったと述べた。内外とも白の塗装で仕上げられることで、材質感が消え、形態の概念性が浮き上がる。
外観とは対照的に、内部空間の構成は複雑かつ巧妙である。敷地の勾配に合わせて、居間から玄関と客間、浴室、書斎、寝室と、高さが異なる五つの床が、螺旋状の廊下と階段で滑らかに繋がれる。1階の居間から寝室まで、空間が扉なしで連続するだけでなく、のちの貝島邸や林邸のようにヴォールト天井がガラススクリーンで区画されることもない。玄関から寝室まで移動するにつれ、ヴォールトの起拱点(曲面の始まる高さ)は床から3.3メートルから0.9メートルまで変化し、両端の窓から入る光がヴォールト内部を薄暮で満たす。

矢野邸 1階、2階平面図と断面図

矢野邸 設計案2階平面図(『建築文化』1974年12月)
玄関から床レヴェルをずらしながら螺旋状に上昇する特徴ある空間構成は、設計がかなり進んだ段階で現れた。着工の半年ほど前の設計案(「反建築的ノートⅥ」『建築文化』1974年12月)は明確な2階建てであり、玄関は居間と同じ1階にあって、2階中央部では十字状の廊下が書斎と寝室、浴室、客間を結んでいたのである。この決定的に重要な変更はアドルフ・ロースの空間からの影響を推測させるが、担当した西岡弘によれば、あくまで敷地の勾配に馴染ませるための検討結果だった。じっさい、玄関を1階に置く先行案では、玄関ポーチは地面に半分埋まり、両側は低い擁壁になっていた。玄関の高さを1階と2階の中間に設定したことが、玄関を地表高さに無理なく一致させるだけでなく、この場所にあった書斎を居間の上に移動し、客室と寝室を上下に重ねる結果を生み、螺旋状空間の生成の鍵となったのである。

左:矢野邸 玄関ポーチまわり(『新建築』1976年4月)
右:矢野邸 玄関から居間をみる(『新建築』1976年4月)

矢野邸 居間内観(『芸術新潮』1972年2月)
ヴォールト屋根は、矢野邸よりやや遅れて設計が始まり先行して竣工した二作品、富士見カントリー・クラブハウス(1974)と北九州市立中央図書館(1974)でも採用された。矢野邸の設計は2年以上も続いたが、1年目の1973年は群馬県立近代美術館と北九州市立美術館の工事が続くかたわらで、富士見と北九州図書館の設計が始まり、どちらも同年のうちに着工したから、矢野邸の設計はあとに回されただろう。記録はないが、三作品の設計案のなかで最初にヴォールトが現れたのは矢野邸だったようだ。長い設計期間中「基本的なイメージに変更が加えられることはなかった」(『新建築』1976年4月、p.174)という建て主・矢野の証言は、当初からヴォールト屋根があったことを示唆しており、西岡弘もまた、ヴォールト屋根は記憶に残る設計の最も早い段階からあったと述べているからだ。
矢野邸の外観構成や内部空間に、1960年代後半の磯崎がパリの古本屋で購入した、フランス革命期の建築家クロード・ニコラ・ルドゥーの設計図集や、ハンス・ホラインの案内でウィーンで見た、20世紀初頭のアドルフ・ロースの住宅の反映を見出すのは容易である。しかし磯崎は、ヴォールトの採用は歴史的建築への意識的な参照の結果ではなかった、と述べている。半円ヴォールトは、地中海沿岸地方のヴァナキュラーな民家や中世ロマネスクの聖堂にもよく見られる。だがこれらのヴォールトが石や煉瓦で屋根を架ける組積造の構法であるのにたいし、コンクリート造の住宅でわずか3.6メートルの幅にヴォールトを使用する構造上の必然性はない。まして当初は木造で計画された矢野邸にヴォールトを採用することは、純粋に形態や空間の欲求から以外になかった。

左:矢野邸 書斎内観と屋上出口(『新建築』1976年4月)
右:矢野邸 寝室から書斎をみる(『新建築』1976年4月)
筆者は1981年に、改修工事のため矢野邸に何度か入る機会をもった。竣工後5年を経て外部建具に傷みが目立ったためである。福岡相互銀行増築工事のため九州に移った西岡弘からひき継いだ。新築時に木製で設けられた外部建具枠の多くは、ディテイル感を消すため庇なしの外壁に面一で納められ、壁と同じ白の塗装で仕上げられたため、浸み込んだ雨水で腐食が進んでいた。また、大きな外壁の断熱対策が十分でなかったのだろう、矢野さんはヒーター用の石油代が嵩(かさ)むことをこぼしていた。建具をステンレス製に替えるとともに、窓ガラスを可能なかぎりペアガラスにしたが、どれほどの効果があっただろうか。それはともかく、居間の曲面壁から階段を回って寝室のヴォールトへと、滑らかに連続する空間が湛えていた独特な静謐さの印象はいまも記憶に残る。
のちに仕事のため滞在したバルセロナで、筆者は矢野さんに何度か会った。退職後にバルセロナに別宅を構えた矢野さんは、写真家の田沼武能を誘(いざな)ってカタルーニャのロマネスク聖堂やサンティアゴ・デ・コンポステーラへの巡礼路を取材していた。その成果は、のちにいくつかの著作となった。1998年頃に矢野邸を訪れた藤森照信が、記録を残している(『TOTO通信』1999年vol. 1、『藤森照信の原・現代住宅再見 2』TOTO出版 2003)。掲載写真にみる矢野邸は、筆者の記憶とは大きく異なる。雑木の繁茂が著しいこととともに、居間といわず寝室といわずモノが溢れているが、よく見ると、多くはバルセロナからの引き揚げ時に持ち帰った未整理の品々のようだ。藤森は矢野邸の空間を、「ガランドウ」で「ホテルか美術館のロビー」のようだと評している。磯崎の住宅の特徴である大ぶりなスケール感と、壁で包み込みながら素っ気ない空間の印象をよく捉えている。日本の住宅に普通にみられる可動間仕切りや棚、フローリング、畳、カーテンといった、人にまとわりつくような生活臭のある設(しつら)えはない。それらはインテリアであり、磯崎にとっては床と壁、天井、窓がかたち作る比例と空間が建築だった。
2010年代半ばに住み手を失った住宅は、残念なことに、雑木林ごと壊されて数軒の建売住宅になった。
(いながわ なおき)
■稲川直樹
中部大学教授。1980年から2003年まで磯崎新アトリエ勤務。
*稲川直樹先生による「磯崎新の住宅建築と勝山の二作品」第2回を掲載しました。第1回は4月15日ブログをお読みください。次回第3回は6月15日に掲載予定です。
●倉俣史朗の限定本『倉俣史朗 カイエ Shiro Kuramata Cahier 1-2 』を刊行しました。
限定部数:365部(各冊番号入り)
監修:倉俣美恵子、植田実
執筆:倉俣史朗、植田実、堀江敏幸
アートディレクション&デザイン:岡本一宣デザイン事務所
体裁:25.7×25.7cm、64頁、和英併記、スケッチブック・ノートブックは日本語のみ
価格:7,700円(税込) 送料1,000円
詳細は3月24日ブログをご参照ください。
お申込みはこちらから
●ジョナス・メカスの映像作品27点を収録した8枚組のボックスセット「JONAS MEKAS : DIARIES, NOTES & SKETCHES VOL. 1-8 (Blu-Ray版/DVD版)」を販売しています。
映像フォーマット:Blu-Ray、リージョンフリー/DVD PAL、リージョンフリー各作品の撮影形式:16mmフィルム、ビデオ
制作年:1963~2014年
合計再生時間:1,262分
価格等については、3月4日ブログをご参照ください。
●ときの忘れものは2017年に青山から〒113-0021 東京都文京区本駒込5丁目4の1 LAS CASAS に移転しました。阿部勤が設計した個人住宅だった空間で企画展の開催、版画のエディション、美術書の編集等を行なっています(WEBマガジン コラージ2017年12月号18~24頁の特集参照)。
JR及び南北線の駒込駅南口から徒歩約8分です。
TEL: 03-6902-9530、FAX: 03-6902-9531
E-mail:info@tokinowasuremono.com
http://www.tokinowasuremono.com/
営業時間=火曜~土曜の平日11時~19時。*日・月・祝日は休廊
コメント